4400 Nyíregyháza Báthory-lakópark
Ingatlan sorszáma: 6734
845 968 Ft / m2
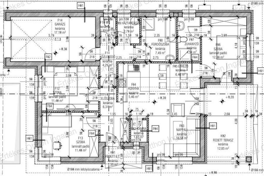
Modern otthon erdőre néző kilátással – Nyíregyháza, Báthory Lakópark Nyíregyháza közkedvelt kertvárosi részén, a Báthory lakópark csendes, nyugodt utcájában kínáljuk ezt a különleges hangulatú, erdőre néző új építésű családi házat, amely egyszerre modern, praktikus és időtálló. Ez nem csak egy ház. Ez egy jövőbeli otthon, ahol a reggeli kávé a teraszon már alapélmény. Méretek és elrendezés -124 m² összterület, amely tökéletesen átgondolt: -92 m² modern lakótér -17 m² fűtött garázs (közvetlen házkapcsolattal) -14 m² fedett terasz -728 m² saját, parkosítható telek Helyiségek: -3 külön bejáratú, tágas szoba -Amerikai konyhás nappali nagy üvegfelületekkel -2 fürdőszoba + WC -Közlekedő -Külön mosókonyha -Fedett előtér -Fedett terasz Az elrendezés családbarát, jól élhető, világos terekre épül. A nappali nagy üvegfelületei természetes fényt és erdei panorámát hoznak a mindennapokba. Műszaki tartalom – ami hosszú távon számít -Kondenzációs gázkazán -Padlófűtés az egész házban -Energiatakarékos, korszerű nyílászárók -Elektromos redőny előkészítve -Minőségi, időtálló anyaghasználat -Gondos, átgondolt kivitelezés Ez egy energetikailag korszerű, modern otthon, ahol a fenntarthatóság és a kényelem kéz a kézben jár. Miért különleges? -Erdőre néző kilátás -Csendes, nyugodt lakókörnyezet -Tágas telek – ide fér kert, játszótér, medence vagy akár mindhárom -Új építés – nincs kompromisszum, nincs felújítás -CSOK+ és Otthon Start programra alkalmas Ráadásul: Most még van lehetőség bizonyos részletek személyre szabására. Tervezett átadás: 2026 nyara Teljes körű ügyintézés Az adásvételt végigkísérjük az első érdeklődéstől a kulcsátadásig: -hitelügyintézés -megbízható ügyvédi háttér -energetikai tanúsítvány -zökkenőmentes lebonyolítás
Lépjen velünk kapcsolatba!
Gajdosné Borbély Szabina
Értékes Otthon Ingatlan
A partner további hirdetései
Kapcsolatfelvételhez kattintson
A tétel adatlapján feltüntetett leírások a rendelkezésre álló információink alapján készültek. Az eszközök működőképességét, rejtett hibáit nem vizsgáltuk, azokról nincs tudomásunk. Kérjük, hogy licitálás előtt személyesen is tekintsék meg a megvásárolni kívánt tételeket, mert utólag nem tudunk reklamációt elfogadni. A szállítási és bontási költségek a vásárlót terhelik. A szállítást akkor lehet megkezdeni, ha az eladó az erre vonatkozó engedélyt megadta. A leütési ár nem tartalmazza az ÁFÁ-t és a vásárlói felárat.