2335 Taksony
Ingatlan sorszáma: 6724
911 905 Ft / m2
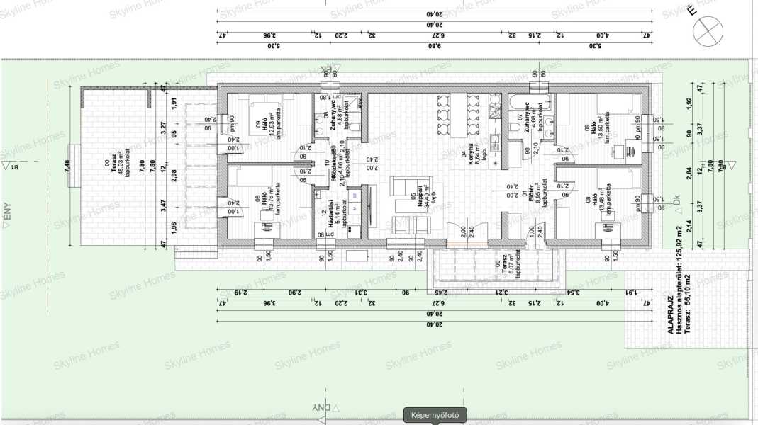
Új építésű, modern családi ház Taksony kedvelt, új házas környezetében – 48 nm terasszal, hőszivattyúval, kulcsrakészen! Ha egy tágas, energiatakarékos, jól átgondolt elosztású otthont keresel nyugodt, rendezett környéken, akkor ezt az ingatlant érdemes megnézned! A nettó 126 nm hasznos alapterületű ház praktikus, élhető terekkel és nagy üvegfelületekkel készült, közvetlen kert- és teraszkapcsolattal. Várható átadás: a vásárlástól számítva kb. 3–4 hónap, így rövid időn belül költözhető! Helyiségek: előtér tágas, világos amerikai konyha–étkező–nappali háztartási helyiség 4 külön nyíló hálószoba 2 fürdőszoba 2 WC 48 nm-es, extra méretű terasz Műszaki tartalom: 30-as Porotherm tégla falazat 15 cm homlokzati szigetelés 30 cm tetőszigetelés 3 rétegű, 5 légkamrás műanyag nyílászárók 12 kW-os hőszivattyús fűtési rendszer teljes házban padlófűtés térkövezett kocsibeálló választható burkolatok: hidegburkolat: 5.000 Ft/nm melegburkolat: 4.000 Ft/nm Céges kivitelezés, így Babaváró, CSOK, bankhitel egyaránt igénybe vehető. Teljes körű, ingyenes hitel- és támogatás ügyintézésben segítünk. Megtekintés rugalmasan, akár hétvégén is!
Lépjen velünk kapcsolatba!
Temesvári László
Skyline Homes
A partner további hirdetései
Kapcsolatfelvételhez kattintson
A tétel adatlapján feltüntetett leírások a rendelkezésre álló információink alapján készültek. Az eszközök működőképességét, rejtett hibáit nem vizsgáltuk, azokról nincs tudomásunk. Kérjük, hogy licitálás előtt személyesen is tekintsék meg a megvásárolni kívánt tételeket, mert utólag nem tudunk reklamációt elfogadni. A szállítási és bontási költségek a vásárlót terhelik. A szállítást akkor lehet megkezdeni, ha az eladó az erre vonatkozó engedélyt megadta. A leütési ár nem tartalmazza az ÁFÁ-t és a vásárlói felárat.