5100 Jászberény
Ingatlan sorszáma: 6701
640 000 Ft / m2
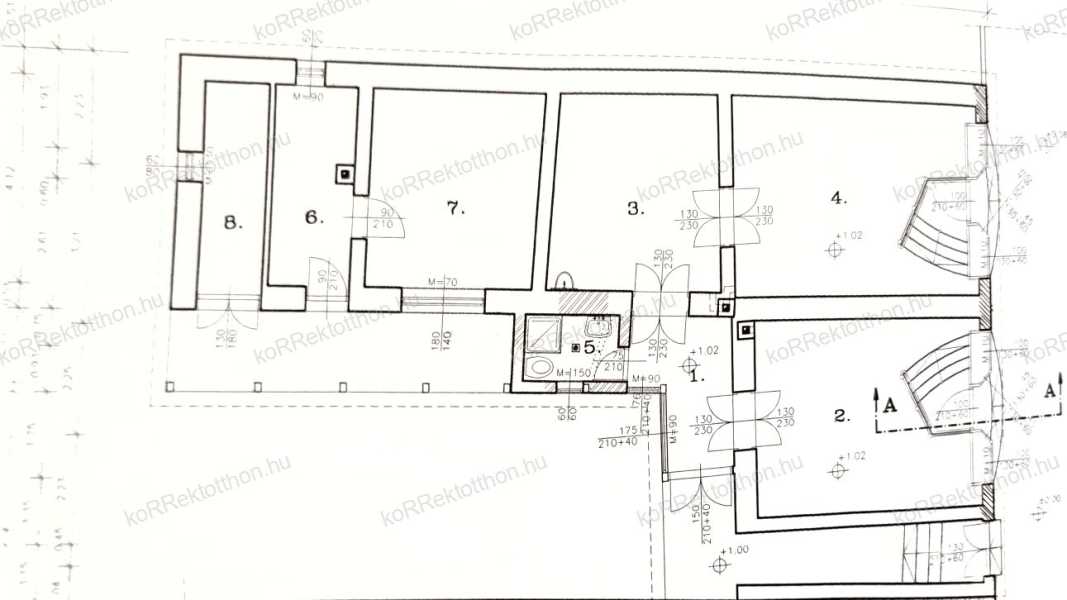
Jászberényben megvételre kínálunk egy 30 év bejáratott és folyamatos ügyfélkörrel rendelkező 100nm-es üzlethelyiséget, kiszolgáló egységekkel. Az üzlethelyiségek, akár külön is választhatóak egyenként 25-25nm külön bejárattal rendelkeznek. Az eladótér jelenleg egybe van nyitva 50nm és a további helyiségek előkészítő, raktár, mosdó, wc további 50nm. Az ingatlan pincével is rendelkezik. A telek területe 309nm. Plussz lehetőség a mellette külön helyrajziszámon található 181nm-es telken, egy felújított 50nm-es, 2 szobás ház, mely külön megegyezés tárgyát képezi. További információért cserébe. kérem hívjon bizalommal! A hitelre se legyen gondja! Bankfüggetlen és Ingyenes szolgáltatásunkkal, kedvezőbb feltételekkel, sorban állás nélkül intézzük pénzügyeit! Keresse ez ügyben is kollégánkat bizalommal!
Lépjen velünk kapcsolatba!
Rékasi Richárd Nimród
koRRektotthon.hu
A partner további hirdetései
Kapcsolatfelvételhez kattintson
A tétel adatlapján feltüntetett leírások a rendelkezésre álló információink alapján készültek. Az eszközök működőképességét, rejtett hibáit nem vizsgáltuk, azokról nincs tudomásunk. Kérjük, hogy licitálás előtt személyesen is tekintsék meg a megvásárolni kívánt tételeket, mert utólag nem tudunk reklamációt elfogadni. A szállítási és bontási költségek a vásárlót terhelik. A szállítást akkor lehet megkezdeni, ha az eladó az erre vonatkozó engedélyt megadta. A leütési ár nem tartalmazza az ÁFÁ-t és a vásárlói felárat.