2543 Süttő
Ingatlan sorszáma: 6650
434 483 Ft / m2
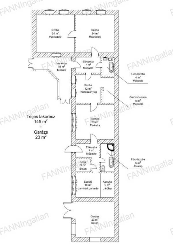
Eladó kétgenerációs családi ház Süttőn! Süttő egy csendes kis utcájában eladó egy kétgenerációs, de egyben is használható családi ház. A ház jelenleg 2 külön bejáratú lakrésszel rendelkezik az alábbiak szerint: 1. lakrész: - veranda - előszoba - 2 egymásból nyíló szoba - fürdőszoba - mini konyha - különálló szoba 2. lakrész: - előszoba - fürdőszoba - spejz - konyha - étkező - szoba A két lakrész jelenleg egy ajtóval van elválasztva, de könnyedén falazható igény szerint. A ház fő falai kő falazatúak, a válaszfalak pedig téglából vannak. A kültéri-beltéri nyílászárók fából készültek, a tetőt pedig cserép fedi. A fűtésről gázkonvektor, valamint cserépkályha gondoskodik, a melegvizet villanybojler illetve gázbojler szolgáltatja. Az épülethez tartozik egy 23 m2 területű garázs, mely igény esetén akár a 2. lakrészhez is bővíthető, valamint az épület egy része alatt pince is található. A kapun belépve egy zárt, intim, sík udvar fogad minket. A garázs mögötti kert enyhén emelkedik, annak a végéből Duna-panoráma tárul elénk. Az udvar középső részén gazdasági épületek helyezkednek el. A kertben találhatók gyümölcsfák. Az ingatlan Falusi CSOK-ra alkalmas!
Lépjen velünk kapcsolatba!
dr. Meszes-Bábszki Fanni
FANNIngatlan
A partner további hirdetései
Kapcsolatfelvételhez kattintson
A tétel adatlapján feltüntetett leírások a rendelkezésre álló információink alapján készültek. Az eszközök működőképességét, rejtett hibáit nem vizsgáltuk, azokról nincs tudomásunk. Kérjük, hogy licitálás előtt személyesen is tekintsék meg a megvásárolni kívánt tételeket, mert utólag nem tudunk reklamációt elfogadni. A szállítási és bontási költségek a vásárlót terhelik. A szállítást akkor lehet megkezdeni, ha az eladó az erre vonatkozó engedélyt megadta. A leütési ár nem tartalmazza az ÁFÁ-t és a vásárlói felárat.