2500 Esztergom
Ingatlan sorszáma: 6582
471 202 Ft / m2
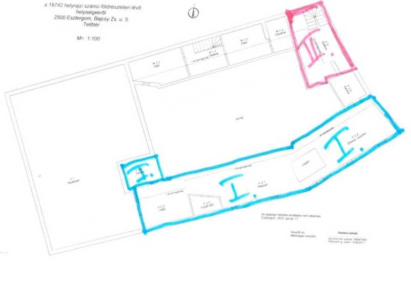
Megvételre kínálok Esztergom szívében, a Római udvarban 13 db üzlethelyiséget. Az üzletház a városközpontban épült 1994-ben, 30 éve bevezetett, sokféle célra hasznosítható, remek befektetési lehetőség. Összesen három tulajdonosi körre tagolódik, melyből a két eladó rész külön külön hirdetésben megtalálható kínálatomban. Jelen hirdetés tárgya 13 db különböző méretű üzlethelyiség, melyek közül 3 db közvetlenül az utcafrontra nyílik, jelenleg is bérlők használják. 10 további üzlet az üzletházon belül található, a hozzájuk tartozó hasznosítható udvarrésszel, egy pedig egy pincehelyiség. Az alaprajzokon II. és III. számú zöld és rózsaszín jelölésű helyiségek. Az üzlethelyiségek mindegyike saját mosdóval és saját villanyórával ellátott, azonban a fűtésükről 1 gázkazán gondoskodik, melyhez egy gázóra tartozik és a vízellátás is egy vízmérőről megoldott. Lokációját tekintve páratlan, a belváros vérkeringésének központja. A bejárat előtt buszmegálló található. Az üzletházban többek között pékség, virágüzlet, varroda, kulcsmásoló, wendobox, és egy szuper faloda működik. Ajánlom első sorban befektetőknek bérbeadás céljából. A bérleti szerződések esetleges átruházásával a bérleti díjak a birtokba vétel napjától azonnal az új tulajdonos számlájára érkeznek. Amennyiben hirdetésem felkeltette érdeklődését, vagy bővebb információra van szüksége, hívjon a megadott számon telefonon vagy WhatsAppon. Irodánk teljes körű jogi háttérrel, igény esetén hitelügyintézéssel áll ügyfelei rendelkezésére.
Lépjen velünk kapcsolatba!
Dinnyés Nóra Zsuzsanna
DN-Ingatlan
A partner további hirdetései
Kapcsolatfelvételhez kattintson
A tétel adatlapján feltüntetett leírások a rendelkezésre álló információink alapján készültek. Az eszközök működőképességét, rejtett hibáit nem vizsgáltuk, azokról nincs tudomásunk. Kérjük, hogy licitálás előtt személyesen is tekintsék meg a megvásárolni kívánt tételeket, mert utólag nem tudunk reklamációt elfogadni. A szállítási és bontási költségek a vásárlót terhelik. A szállítást akkor lehet megkezdeni, ha az eladó az erre vonatkozó engedélyt megadta. A leütési ár nem tartalmazza az ÁFÁ-t és a vásárlói felárat.