2028 Pilismarót
Ingatlan sorszáma: 6580
112 056 Ft / m2
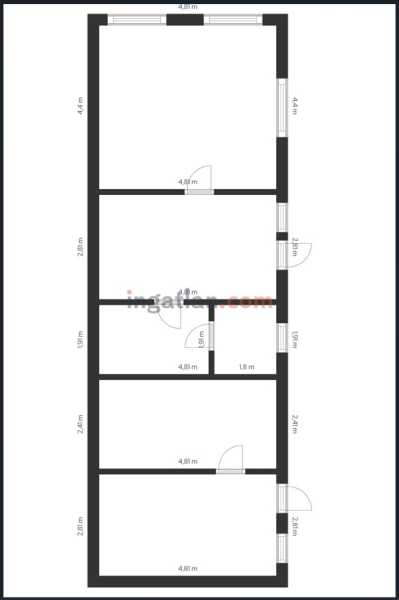
Megvételre kínálok a Dunakanyar egyik kedvenc településén, Pilismaróton egy családi házat. Az ingatlan a település főútján található. Az udvarban négy család él. A hirdetés tárgyát az egyik utcafronti épület képezi, mely két helyrajzi számon szerepel, a tulajdoni lap szerint 57+50 nm. A házak 1/1-es tulajdonúak, a közös udvarra ügyvéd által ellenjegyzett használati megállapodás készült, melynek eredménye képpen az ingatlanra lakáshitel igényelhető. Az utca ezen oldalán zártsorú beépítés jellemző, ennek következtében ide is egy kapualjon keresztül jutunk. A telek jobb oldalán álló hosszúkás, parasztház jellegű épület vegyes falazatú, cserép fedésű, erősen felújítandó állapotú. Nappali és éjszakai áram is rendelkezésre áll. Gázvezeték a telken található. A felújítás során akár két lakrész is kialakítható, a tornác beépítésével további hasznos terek nyerhetőek. Az ablakcseréhez a tulajdonos már megvásárolta a beépítendő fa nyílászárókat, melyek a vételár részét képezik. Az épület teljes hosszában egy 60 nm-es elkerített udvarrész a tulajdonos kizárólagos használatában van. A kerítés elbontásával erre a területre egy saját gépjárműbeálló is létesíthető. A telek végében lévő 143 nm-es területen pihenő-, vagy konyhakert is kialakítható. A közelben Coop és CBA áruház, zöldséges, dohánybolt, takarmánybolt, buszmegálló található. A településen óvoda, iskola működik, Esztergom 10 perc autóútra elérhető. Ajánlom gyermekes családoknak, pároknak, akik a nagyvárosok zajától távol, egy kedves kis Dunamenti településen képzelik mindennapjaikat, vagy szabadidejüket. Az erdő és a Duna közelsége rengeteg szabadidős , és sportolási lehetőséget biztosít. A településen falusi CSOK igényelhető. Amennyiben hirdetésem felkeltette érdeklődését, vagy bővebb információra van szüksége, hívjon a megadott számon telefonon, vagy WhatsAppon. Az ingatlan előzetes időpont egyeztetés után a hét bármely napján megtekinthető. Igény esetén teljeskörű bankfüggetlen hitelügyintézéssel, jogi háttérrel állunk ügyfeleink rendelkezésére.
Lépjen velünk kapcsolatba!
Dinnyés Nóra Zsuzsanna
DN-Ingatlan
A partner további hirdetései
Kapcsolatfelvételhez kattintson
A tétel adatlapján feltüntetett leírások a rendelkezésre álló információink alapján készültek. Az eszközök működőképességét, rejtett hibáit nem vizsgáltuk, azokról nincs tudomásunk. Kérjük, hogy licitálás előtt személyesen is tekintsék meg a megvásárolni kívánt tételeket, mert utólag nem tudunk reklamációt elfogadni. A szállítási és bontási költségek a vásárlót terhelik. A szállítást akkor lehet megkezdeni, ha az eladó az erre vonatkozó engedélyt megadta. A leütési ár nem tartalmazza az ÁFÁ-t és a vásárlói felárat.