2500 Esztergom
Ingatlan sorszáma: 6571
1 111 111 Ft / m2
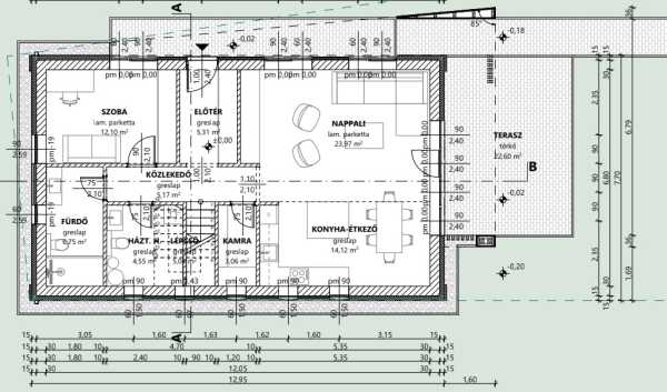
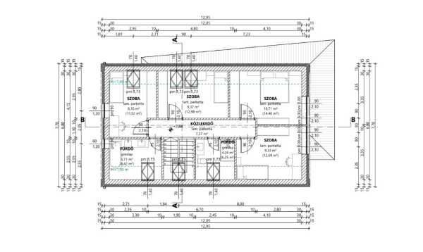
Eladó új építésű családi ház Esztergomban! Esztergom zöldövezetében, kertvárosias környezetben, mégis a belvároshoz közel, a Dunától 15 perc sétányira, a Csenkei hídnál eladó egy – jelenleg még építés alatt álló – új építésű családi ház, a hozzá tartozó 671 m2 területű telekkel. A ház két szintes, mindösszesen 135 m2 alapterületű. A földszinten (80,07 m2) előtér, fürdőszoba, háztartási helyiség, kamra, konyha-étkező, közlekedő, nappali, hálószoba, valamint lépcsőház kerül kialakításra, míg a tetőtérben (55,83 m2) 2 db fürdőszoba, 4 db hálószoba, illetve egy közlekedő. A földszinten egy 22,60 m2 területű terasz is helyet kap. A ház jelenleg 40%-os készültségi szinten áll. Közművek közül vezetékes víz-, villany-, valamint csatornahálózat is megtalálható. A ház fő falai LEIERTHERM 30 N+F téglából, a válaszfalai LEIERTHERM 10 N+F téglából épültek, a tetőt Terrán Zenit beton tetőcserép fedi. A külső nyílászárók fehér színű 5 légkamrás műanyag bukó-nyíló ablakok lesznek, 3 rétegű üvegezéssel, kívül fehér PVC párkánnyal. A bejárati ajtó 5 ponton záródó, hőszigetelt ajtó lesz. A padló lépésálló AUSTROTHERM AT-N100 hőszigetelést kap 12 cm vastagságban. A lábazatra 15 cm XPS zártcellás hőszigetelés kerül. A külső főfalak előtt 15 cm AUSTROTHERM AT-H80 EPS hőszigetelés készül. A ház fűtéséről a tervek szerint 10 kw-os hőszivattyús fűtésrendszer, padlófűtés, fan-coil központi hűtő-fűtőrendszer fog gondoskodni. A ház vételára a készültségi fokozatától függ; - 1. fűtéskész állapotban 962.963.- Ft/m2, tehát 130 M Ft, - 2. kulcsrakész állapotban, szerelvények nélkül 1.111.111.- Ft/m2, tehát 150 M Ft, - 3. kulcsrakész állapotban, szerelvényekkel együtt 1.500.000.- Ft/m2, tehát 202,5 M Ft. 1. Fűtéskész állapot: nem tartalmazza a beltéri nyílászárókat, burkolatokat, szanitereket, csaptelepeket, lámpatesteket, festést, kerítést, bejáró térkövezését. 2. Kulcsrakész állapot szerelvények nélkül: nem tartalmazza a lámpatesteket, kerítést, bejáró térkövezését (térkövezéshez előkészítést igen). 3. Kulcsrakész állapot szerelvényekkel: szó szerinti kulcsrakész állapot (beépített bútorok kivételével), csak költözni szükséges. A kulcsrakész állapot az eladó által meghatározott árkategóriába tartozó burkolatokkal, szaniterekkel, lámpatestekkel értendő, azonban ettől felár ellenében igény esetén lehetőség van eltérni. A tetőtéri háló- és fürdőszobák falazata (tégla vagy hanggátlós karton) beosztása még rugalmasan változatható a vevő igényeinek megfelelően. A Víz-, és elektromos kiállások helye, darabszáma még rugalmasan tervezhető a vevő igényeinek megfelelően. A közelben található buszmegálló, a belváros busszal 10, autóval 5 perc alatt elérhető. A Duna-part gyalog kb. 15 perc alatt elérhető, itt bicikliút vezet a belvárosba. Az ingatlanvásárláshoz szükséges teljeskörű ügyintézéssel állok rendelkezésre!
Lépjen velünk kapcsolatba!
Dinnyés Nóra Zsuzsanna
DN-Ingatlan
A partner további hirdetései
Kapcsolatfelvételhez kattintson
A tétel adatlapján feltüntetett leírások a rendelkezésre álló információink alapján készültek. Az eszközök működőképességét, rejtett hibáit nem vizsgáltuk, azokról nincs tudomásunk. Kérjük, hogy licitálás előtt személyesen is tekintsék meg a megvásárolni kívánt tételeket, mert utólag nem tudunk reklamációt elfogadni. A szállítási és bontási költségek a vásárlót terhelik. A szállítást akkor lehet megkezdeni, ha az eladó az erre vonatkozó engedélyt megadta. A leütési ár nem tartalmazza az ÁFÁ-t és a vásárlói felárat.