4400 Nyíregyháza Belváros
Ingatlan sorszáma: 6458
1 044 643 Ft / m2
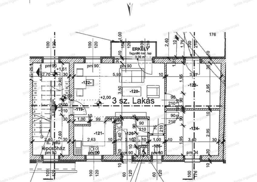
ELADÓ LAKÁS – NYÍREGYHÁZA BELVÁROS – BÚTOROZOTT, BÉRLŐVEL, BEFEKTETŐKNEK IDEÁLIS! FŐ ELŐNYÖK: • Újszerű, fiatalos lakás a belváros közelében • Bútorozott, gépesített – a vételár tartalmazza • Udvari beálló a vételárban, erkélyes kialakítás • Modern fűtés: kondenzációs kazán + radiátor + padlófűtés • Jelenleg is megbízható bérlő lakja, aki legalább még 2 évig maradna Ez a lakás kiváló választás mind befektetőknek, mind azoknak, akik a belváros közelében, kényelmes, azonnal költözhető otthont keresnek modern műszaki tartalommal és alacsony fenntartási költségekkel. RÉSZLETES LEÍRÁS A lakás társasházi környezetben, a városközpont közelében helyezkedik el, rendezett, zárt udvarral és udvari beállási lehetőséggel. Az ingatlan típusa „lakás”, újszerű állapotú, egy szinten helyezkedik el. A lakás nettó alapterülete 57,79 m², redukált alapterülete 56,29 m², a lakótér 54,79 m², plusz egy kb. 3 m²-es erkély szolgálja a kényelmet. A lakáshoz tartozik egy udvari gépkocsi beálló, melynek ára a vételár részét képezi, emellett az utcán is lehetséges a parkolás. A közös költség 9200 Ft/hó. Az épület tégla falazatú, 10 cm-es hőszigeteléssel. Külső nyílászárói műanyag szerkezetűek, belül fa ajtók találhatók. A burkolatok kerámia és laminált padló kombinációjából állnak. A lakás tájolása észak–déli, ami egész nap kellemes fényviszonyokat biztosít. A lakás elosztása praktikus: • Előtér • Nappali • Konyha • Étkező • 2 külön nyíló szoba • Külön WC • Fürdőszoba káddal • Erkély (kb. 3 m²) A fűtést kondenzációs kazán biztosítja radiátorokkal és padlófűtéssel, ami komfortos és gazdaságos megoldás. A lakás összkomfortos, modern műszaki állapottal. A jellemzők között szerepel, hogy teljesen bútorozott és gépesített, ezt a vételár tartalmazza, így gyakorlatilag egy kulcsrakész, azonnal használható ingatlant kap a leendő tulajdonos. Az ingatlant jelenleg bérlő lakja, aki legalább még két évig szeretné bérelni a lakást, ezért kifejezetten jó befektetési lehetőség. A START hitel igénybevétele is lehetséges, ami további pénzügyi előnyt jelenthet. MIÉRT EZT A LAKÁST NÉZZE MEG? Ne hagyja ki ezt a kivételes lehetőséget! Nyíregyháza belvárosának közelében, fiatalos, újszerű, teljesen bútorozott és gépesített lakás várja új tulajdonosát, megbízható, bent maradó bérlővel – ideális, azonnal jövedelmet termelő befektetés! Keressen bizalommal telefonon vagy e-mailben, akár hétvégén is! Megtekintés rugalmasan, előzetes időpont-egyeztetéssel megoldható. Ár: 58 500 000 Ft
Lépjen velünk kapcsolatba!
Reichert Róbert
Smile Ingatlaniroda
A partner további hirdetései
Kapcsolatfelvételhez kattintson
A tétel adatlapján feltüntetett leírások a rendelkezésre álló információink alapján készültek. Az eszközök működőképességét, rejtett hibáit nem vizsgáltuk, azokról nincs tudomásunk. Kérjük, hogy licitálás előtt személyesen is tekintsék meg a megvásárolni kívánt tételeket, mert utólag nem tudunk reklamációt elfogadni. A szállítási és bontási költségek a vásárlót terhelik. A szállítást akkor lehet megkezdeni, ha az eladó az erre vonatkozó engedélyt megadta. A leütési ár nem tartalmazza az ÁFÁ-t és a vásárlói felárat.