3035 Gyöngyöspata
Ingatlan sorszáma: 6431
339 716 Ft / m2
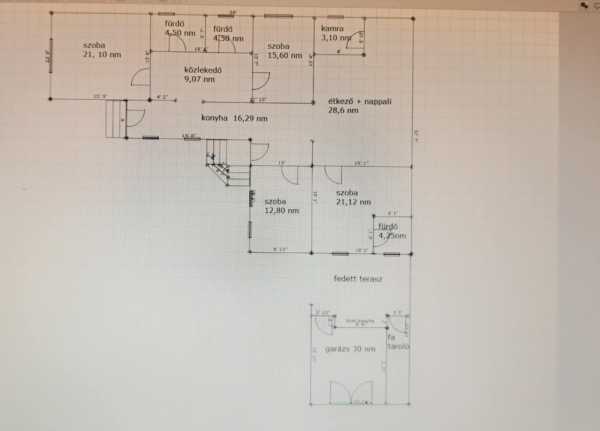
Teljes körűen újjáépített családi ház eladó Gyöngyöspatán, a patakpart közelében! Eladásra kínálunk egy 140,93 m²-es, újjáépített családi házat a Mátra lábánál, Gyöngyöspatán, 550 m²-es telken, kovácsoltvas kerítéssel körülvéve. A ház csendes, patak menti utcában található, barátságos szomszédságban, Gyöngyöstől mindössze 11 km-re. Az ingatlan 2016-ban kapott teljes szerkezeti és esztétikai megújulást: új alap, falazat, hőszigetelt tető, új cserepezés, 10 cm-es külső szigetelés, kétrétegű fa nyílászárók, szúnyoghálóval és fa spalettákkal. Az elektromos, víz- és csatornahálózat szintén korszerűsített. A házban 4 szoba, 3 fürdőszoba, 2 külön bejárat, valamint egy fedett terasz is megtalálható. Fűtését vízteres kandalló-kályha biztosítja, de elektromos fűtőpanelek is rendelkezésre állnak. Gázcsonk telken belül van, napelem rendszer kiépíthető. Az ingatlanhoz garázs tartozik automata kapuval, mellette 3 autó számára biztosított a kényelmes parkolás. A ház és a garázs riasztórendszere központi megfigyelésbe kötött. Ideális választás lehet nagyobb családoknak, többgenerációs együttélésre, vagy akár nyugodt vidéki otthonnak is. Az udvaron igény szerint kerti konyha is kialakítható. Ne hagyja ki ezt a lehetőséget – költözzön a természethez közel, mégis jó megközelíthetőséggel! Gyémánt Ingatlan iroda teljes körű ügyintézéssel áll az eladók és a vevők rendelkezésére! A kínálatunkból választott ingatlan finanszírozásához kedvezményes hitel lehetőséget kínálunk. Az adásvételi szerződés megkötéséhez igény szerint megbízható ügyvédi közreműködést biztosítunk, és segítséget nyújtunk az adásvételhez kapcsolódó ügyek intézéséhez. Érdeklődés és megtekintés céljából történő időpont egyeztetés érdekében kérem keressen a megadott telefonszámon!
Lépjen velünk kapcsolatba!
Fekécs Nóra
Gyémánt Ingatlaniroda Salgótarján
A partner további hirdetései
Kapcsolatfelvételhez kattintson
A tétel adatlapján feltüntetett leírások a rendelkezésre álló információink alapján készültek. Az eszközök működőképességét, rejtett hibáit nem vizsgáltuk, azokról nincs tudomásunk. Kérjük, hogy licitálás előtt személyesen is tekintsék meg a megvásárolni kívánt tételeket, mert utólag nem tudunk reklamációt elfogadni. A szállítási és bontási költségek a vásárlót terhelik. A szállítást akkor lehet megkezdeni, ha az eladó az erre vonatkozó engedélyt megadta. A leütési ár nem tartalmazza az ÁFÁ-t és a vásárlói felárat.