3796 Borsodszirák Rákóczi Ferenc utca
Ingatlan sorszáma: 6282
210 588 Ft / m2
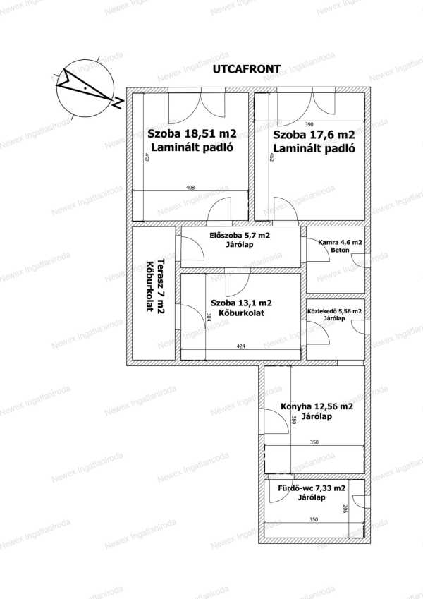
Eladó családi ház Miskolctól mindössze 22 km-re, Edelény közelében – nyugodt környezet, kiváló elhelyezkedés! Kínálatunkban most egy 85 m²-es, bővített családi ház szerepel, amely tökéletes választás lehet mindazok számára, akik a természet közelségét, a csendes vidéki hangulatot keresik, de nem szeretnének lemondani a városok nyújtotta kényelemről. Az ingatlan elosztása átgondolt és praktikus: három szoba, előszoba, kamra és közlekedő biztosítja a kényelmes mindennapokat. A ház eredetileg klasszikus „kádár kocka” típusú épületként épült, amelyet később bővítettek, így alakították ki a tágas konyhát, fürdőszobát WC-vel, pincét és tárolót. A korszerűsítéseknek köszönhetően az ingatlan műanyag nyílászárókkal felszerelt. A fűtést gázkonvektorok, a meleg vizet villanybojler biztosítja. A rendezett, gondozott kertben több termő gyümölcsfa is megtalálható, az udvaron pedig garázs áll rendelkezésre, amely további értéket képvisel. Ez a ház tökéletes otthon lehet azoknak, akik szeretnének kiszakadni a város zajából, de fontos számukra, hogy Miskolc és Edelény könnyen, gyorsan elérhető legyen. Ne hagyja ki ezt a lehetőséget – jöjjön el, tekintse meg személyesen, és fedezze fel ennek a barátságos otthonnak a valódi értékét!
Lépjen velünk kapcsolatba!
Inklovics László
Newex Ingatlaniroda
A partner további hirdetései
Kapcsolatfelvételhez kattintson
A tétel adatlapján feltüntetett leírások a rendelkezésre álló információink alapján készültek. Az eszközök működőképességét, rejtett hibáit nem vizsgáltuk, azokról nincs tudomásunk. Kérjük, hogy licitálás előtt személyesen is tekintsék meg a megvásárolni kívánt tételeket, mert utólag nem tudunk reklamációt elfogadni. A szállítási és bontási költségek a vásárlót terhelik. A szállítást akkor lehet megkezdeni, ha az eladó az erre vonatkozó engedélyt megadta. A leütési ár nem tartalmazza az ÁFÁ-t és a vásárlói felárat.