3721 Felsőnyárád
Ingatlan sorszáma: 6276
283 226 Ft / m2
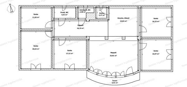
Ha olyan otthont keres, amely kényelmes életteret biztosít minden családtagnak, illetve lehetőséget ad otthoni munkavégzésre, vendégfogadásra vagy akár hobbiszobák kialakítására, akkor érdemes közelebbről is megismernie ezt a különleges ingatlant Felsőnyárád szívében! Főbb jellemzők: - 155 m² lakótér – kimagasló alapterület ebben az árkategóriában - 5 külön nyíló szoba – ideális nagycsaládosoknak, vagy többfunkciós használatra - Teljes körű belső felújítás – burkolatok, vezetékek, fürdőszoba korszerűsítve - Stabil téglaépület – hosszú távra tervezőknek, megbízható szerkezettel - Gazdaságos, vegyes tüzelésű fűtés – költséghatékony üzemeltetés - Saját garázs – biztonságos és kényelmes parkolás az udvarban - 1 130 m² telek – könnyen karbantartható udvar, ideális pihenéshez, kertészkedéshez Lokáció és környezet: Az ingatlan Felsőnyárád központi, mégis csendes részén helyezkedik el, kiváló lakókörnyezetben. A barátságos szomszédság és a rendezett környezet biztosítja a nyugodt mindennapokat. Az utcafronti kilátás lehetővé teszi a forgalom és a történések követését, míg a belső terek zavartalan pihenést kínálnak. Költözésre kész állapot: Az ingatlant nem kell felújítani vagy átalakítani – a modern belső terek azonnal otthonossá varázsolhatók. Csak a személyes tárgyait kell elhoznia. Ekkora alapterületű, öt szobás családi ház ilyen áron ritkán érhető el a környéken. Kiváló lehetőség azoknak, akik nem szeretnének kompromisszumot kötni a tér, a minőség és az ár-érték arány között. További információkért és megtekintésért hívjon bizalommal! Ne hagyja ki ezt a lehetőséget – tekintse meg személyesen, és érezze meg, milyen, amikor egy ház igazi otthonként fogadja Önt és családját!
Lépjen velünk kapcsolatba!
Kozák Csaba
Newex Ingatlaniroda
A partner további hirdetései
Kapcsolatfelvételhez kattintson
A tétel adatlapján feltüntetett leírások a rendelkezésre álló információink alapján készültek. Az eszközök működőképességét, rejtett hibáit nem vizsgáltuk, azokról nincs tudomásunk. Kérjük, hogy licitálás előtt személyesen is tekintsék meg a megvásárolni kívánt tételeket, mert utólag nem tudunk reklamációt elfogadni. A szállítási és bontási költségek a vásárlót terhelik. A szállítást akkor lehet megkezdeni, ha az eladó az erre vonatkozó engedélyt megadta. A leütési ár nem tartalmazza az ÁFÁ-t és a vásárlói felárat.