3529 Miskolc Csabai kapu
Ingatlan sorszáma: 6274
812 245 Ft / m2
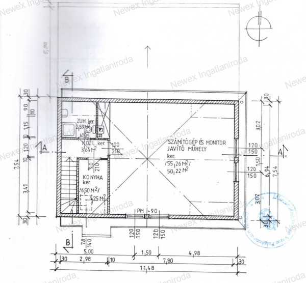
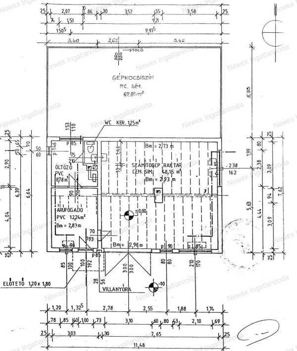
EGY KÜLÖNLEGES ADOTTSÁGÚ INGATLAN KERÜLT MOST AZ INGATLANPIACRA!!! Miskolcon a Csabai kapu frekventált utcájában eladó egy telken 2 ingatlan! Miskolc belvárosához közel, mégis csendes, frekventált helyen eladó egy telken két ház. Jelenleg kivett iroda, üzlet néven van bejegyezve a Földhivatalban. 2 épület áll rendelkezésre: 1., Az utcafrontos 125 m2-es fő épület éveken át üzlethelyiségnek, szervíznek és irodáknak adott otthont. - 1940-ben épült téglaszerkezetű családi ház folyamatosan karban volt tartva és fel lett újítva. - KÜLÖN VEZÉRELHETŐ, modern fűtés rendszer biztosítja ennek a háznak és az udvarban lévő háznak is a meleget. - A helyiségek klimatizáltak. - Modern számítógépes és informatikai hálózat áll rendelkezésne az épületben. - Természetesen az ingatlan visszaalakítható eredeti funkciójára igény szerint. Az ingatlan elosztása: Üzlethelyiség: 24,96 m2 Iroda 1, (Tárgyaló): 17,47 m2 Iroda 2, (Titkárság): 13,75 m2 Iroda 3, (Szerviz I.): 11,36 m2 Iroda 4, (Szerviz II.): 19,98 m2 Iroda 5, (Könyvelés): 19,90 m2 Közlekedő: 3,95 m2 Étkező: 10,66 m2 Mosdó: 3,92 m2 Előtér: 1 : 2,00 m2 Előtér:2 : 3,00 m2 Kézi raktár/pince lejáró/szerver sz.: 4,90 m2 Pince: 14,00 m2 2., A 2003-ban téglából épült földszint és tetőtérbeépítéses 125 m2-es épületben az alsó szinten műhely és szervízrész működött, a felső rész lakórésznek lett átalakítva. Az alsó rész egy nagy műhelyből, vizes blokkból és előtérből, a felső szint 3 szobából, fürdő + WC-ből, konyhából és közlekedőből áll. A lakószintet jelenleg egy megbízható család bérli több éve. 30 napos a felmondási idejük és szívesen maradnának az új tulajdonos albérlőjének is. Helyiségek: Netto alapterület Bruttó alapterület Földszint: Előszoba: 12,24 12,24 Gardrób: 8,78 8,78 Mosdó/WC: 1,25 1,25 1 beállásos garázs/raktár/műhely: 48,15 48,15 Tetőtér: Közlekedő: 3,6 3,6 Konyha: 4,25 6,5 Mosdó/WC: 2,59 4 Nappali: 34,8 34,8 Hálószoba1: 7,68 10,23 Hálószoba2: 7,68 10,23 Összesen: 131,02 139,78 A belső ingatlan mellett egy 68 m2-es fémszerkezetes kocsitároló áll rendelkezésre. Az udvar teljes mértékben le van aszfaltozva, több autó tárolására is alkalmas. Az ingatlan céges tulajdonban van, céggel együtt is megvásárolható. Ha szeretné megtekinteni az ingatlant kérem hívjon és örömmel megmutatom Önnek!
Lépjen velünk kapcsolatba!
Kozák Csaba Tamás
Newex Ingatlaniroda
A partner további hirdetései
Kapcsolatfelvételhez kattintson
A tétel adatlapján feltüntetett leírások a rendelkezésre álló információink alapján készültek. Az eszközök működőképességét, rejtett hibáit nem vizsgáltuk, azokról nincs tudomásunk. Kérjük, hogy licitálás előtt személyesen is tekintsék meg a megvásárolni kívánt tételeket, mert utólag nem tudunk reklamációt elfogadni. A szállítási és bontási költségek a vásárlót terhelik. A szállítást akkor lehet megkezdeni, ha az eladó az erre vonatkozó engedélyt megadta. A leütési ár nem tartalmazza az ÁFÁ-t és a vásárlói felárat.