3630 Putnok Bem József tér
Ingatlan sorszáma: 6272
138 704 Ft / m2
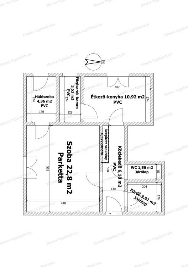
Putnok zöldövezeti részén a Bem József téren kínálunk egy jó állapotú azonnal költözhető 54 m2 nagyságú első emeleti lakást. Nyugodt, csendes, gondozott 9 lakásos lépcsőházban található a gázkonvektorokkal fűthető, részben műanyag nyílászárókkal, külön fürdő és wc helyiséggel rendelkező kis otthon. Biztonsági műanyag ajtón léphetünk a tágas közlekedőbe ahonnan balra a nagy szoba nyílik, jobbra a fürdő és a wc, a közlekedő végében a nappali-étkező található (ami eredetileg konyha funkcióval bírt, a víz és a szennyvíz kiállások a falsíkon fellelhetők), innen nyílik a kamrából kialakított konyha sarok. A 22 négyzetméteres nagy szobából egy kis helyiségbe jutunk ami háló szobának megfelelhet. Fiatal párnak a közös élet kezdéséhez kitűnő lehetőség ez a lakás de gyermekes család is kényelmes otthont varázsolhat magának. Kérdésével a 06 30 101 1411 telefonszámon hívhat, irodánk az ingatlan vásárláshoz szükséges teljeskörű ügyintézéssel áll a rendelkezésére!
Lépjen velünk kapcsolatba!
                                                
                        Inklovics László
                         Newex Ingatlaniroda
                        A partner további hirdetései
                        
Kapcsolatfelvételhez kattintson
                        A tétel adatlapján feltüntetett leírások a rendelkezésre álló információink alapján készültek. Az eszközök működőképességét, rejtett hibáit nem vizsgáltuk, azokról nincs tudomásunk. Kérjük, hogy licitálás előtt személyesen is tekintsék meg a megvásárolni kívánt tételeket, mert utólag nem tudunk reklamációt elfogadni. A szállítási és bontási költségek a vásárlót terhelik. A szállítást akkor lehet megkezdeni, ha az eladó az erre vonatkozó engedélyt megadta. A leütési ár nem tartalmazza az ÁFÁ-t és a vásárlói felárat.