2898 Kocs
Ingatlan sorszáma: 6120
280 000 Ft / m2
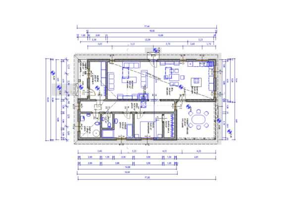
Tatától 10 Km-re Kocson félkész könnyűszerkezetes családiház eladó. Alapozás: sávalapozás vasbeton fejgerendával és hálós vasalású vasbeton lemezzel. A tartószerkezetet 10/10 cm fa oszlopok és 10/18 cm fa gerendázat, valamint 10/20 cm fa szaruzat. Az ingatlan adatai: - Konyha: 16 m² - Étkező: 15 m² - Nappali: 31 m² - Előszoba: 9 m² - Közlekedő: 16 m² - Háztartási helyiség: 8 m² - WC: 2,5 m² - Fürdő: 8,5 m² - Hálószoba: 10,6 m² - Gardrób: 4 m² - Fedett bejárat: 6 m² - Fedett terasz: 23,5 m²
Lépjen velünk kapcsolatba!
Vas István
Turul Ingatlaniroda
A partner további hirdetései
Kapcsolatfelvételhez kattintson
A tétel adatlapján feltüntetett leírások a rendelkezésre álló információink alapján készültek. Az eszközök működőképességét, rejtett hibáit nem vizsgáltuk, azokról nincs tudomásunk. Kérjük, hogy licitálás előtt személyesen is tekintsék meg a megvásárolni kívánt tételeket, mert utólag nem tudunk reklamációt elfogadni. A szállítási és bontási költségek a vásárlót terhelik. A szállítást akkor lehet megkezdeni, ha az eladó az erre vonatkozó engedélyt megadta. A leütési ár nem tartalmazza az ÁFÁ-t és a vásárlói felárat.