2100 Gödöllő
Ingatlan sorszáma: 6099
1 277 778 Ft / m2
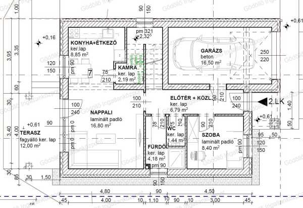
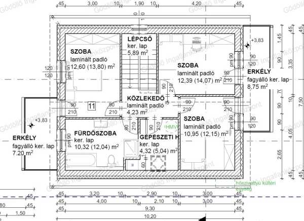
Gödöllő fenyvesi részén, remek adottságokkal rendelkező, igényesen megtervezett, nappali+4 szobás, B energetikai besorolású, energiahatékony családi ház eladó! Műszaki adatok: - 30-as PTH tégla falazat + 15cm grafit szigetelés, - betonfödém, - antracit betoncserép + 30cm vastag kőzetgyapot szigetelés, - 3 réteg üvegezésű 5 légkamrás műanyag nyílászárók, - Midea hőszivattyú, padlófűtés, fürdőkben Fisher törülköző szárító, helyiségenként szabályozható Fan Coil rendszer - riasztó Elosztás: - Földszint: előtér, nappali-konyha-étkező, kamra, egy szoba, fürdő, vendégmosdó + 16,5nm garázs + 12nm terasz. - Tetőtér: 3 szoba, közlekedő, fürdő, gépészeti helyiség + 8,75nm és 7,2nm erkély. Telek: - 515nm-es telek. - Az ár tartalmazza a térburkolatokat, az utcafronti kerítést, a fonatos oldalkerítést, a kapu és motorszerkezetet, a fa szerkezetű tárolót, kerti csapot, bejárati előtetőt, a területrendezést. Környezet: Csendes, nyugodt környék, busz, vonat, bolt gyalog 10 perc alatt, iskola, óvoda autóval 5 perc alatt könnyen elérhető! Várható kulcsrakész átadás: 2025.szeptember vége. Irányár: 161MFt Hivatkozási szám: 2518169. Megtekinthető telefonos időpont egyeztetés alapján: Sápi Tamás +36 20 944-7025 sapitamas@godolloi.hu GÖDÖLLŐ INGATLANKÖZPONT - www.godolloi.hu: Gödöllő és környéke legnagyobb ingatlan választéka /Gödöllő, Szada, Veresegyház, Kistarcsa, Kerepes, Erdőkertes/ eladó-kiadó családi ház, telek, lakás! Ingatlan építés és felújítás!
Lépjen velünk kapcsolatba!
Sápi Tamás
Gödöllő Ingatlanközpont
A partner további hirdetései
Kapcsolatfelvételhez kattintson
A tétel adatlapján feltüntetett leírások a rendelkezésre álló információink alapján készültek. Az eszközök működőképességét, rejtett hibáit nem vizsgáltuk, azokról nincs tudomásunk. Kérjük, hogy licitálás előtt személyesen is tekintsék meg a megvásárolni kívánt tételeket, mert utólag nem tudunk reklamációt elfogadni. A szállítási és bontási költségek a vásárlót terhelik. A szállítást akkor lehet megkezdeni, ha az eladó az erre vonatkozó engedélyt megadta. A leütési ár nem tartalmazza az ÁFÁ-t és a vásárlói felárat.