2100 Gödöllő
Ingatlan sorszáma: 6037
637 052 Ft / m2
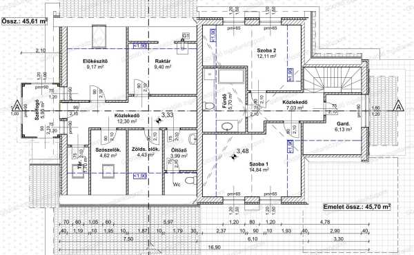
Gödöllőn, kiváló környéken, jó állapotú, körbenapozott családi ház - üzlethelyiség eladó! Az ingatlan 2010-ben 30-as PTh tégla falazattal + 10cm dryvit szigeteléssel, műanyag nyílászárókkal és cserépfedéssel épült. Jelenleg két részből áll: Az újszerű lakrészben (111nm) előtér, nappali-konyha-étkező, kamra, vendégmosdó, két szoba, közlekedő és egy fürdőszoba lett kialakítva. Másik része (107nm+33nm) nagyon jó lehetőséget kínál vállalkozásra, de lakhatásra is könnyen átépíthető. Földszinten hűtő- és fagyasztó kamra, fűszerraktár, előkészítő helyiség, női-férfi öltöző kapott helyet. Az emelet pékség üzemeltetéséhez lett berendezve, zöldség előkészítővel, szárazáru raktárral. Az épülethez tartozik még egy 10nm-es pince, 19,15nm-es fedett terasz és 40nm-es fedett kocsibeálló is. Klímákkal felszerelt, fűtése cirkóval+radiátorokkal, valamint vegyestüzelésű kazánnal és padlófűtéssel megoldott. Az udvarban kerti sütögető, kutya kennel és fa játszótér is található. Növények gondozását öntözőrendszer segíti! Nagyon jó környék, buszmegálló, iskola, óvoda 200 méteren belül könnyen elérhető! Irányár: 159,9Mft Hivatkozási szám: 2517997. Megtekinthető telefonos időpont egyeztetés alapján: Sápi Tamás +36 20 944-7025 sapitamas@godolloi.hu GÖDÖLLŐ INGATLANKÖZPONT - www.godolloi.hu: Gödöllő és környéke legnagyobb ingatlan választéka /Gödöllő, Szada, Veresegyház, Kistarcsa, Kerepes, Erdőkertes/ eladó-kiadó családi ház, telek, lakás! Ingatlan építés és felújítás!
Lépjen velünk kapcsolatba!
Sápi Tamás
Gödöllő Ingatlanközpont
A partner további hirdetései
Kapcsolatfelvételhez kattintson
A tétel adatlapján feltüntetett leírások a rendelkezésre álló információink alapján készültek. Az eszközök működőképességét, rejtett hibáit nem vizsgáltuk, azokról nincs tudomásunk. Kérjük, hogy licitálás előtt személyesen is tekintsék meg a megvásárolni kívánt tételeket, mert utólag nem tudunk reklamációt elfogadni. A szállítási és bontási költségek a vásárlót terhelik. A szállítást akkor lehet megkezdeni, ha az eladó az erre vonatkozó engedélyt megadta. A leütési ár nem tartalmazza az ÁFÁ-t és a vásárlói felárat.