2100 Gödöllő Fenyves
Ingatlan sorszáma: 6011
843 460 Ft / m2
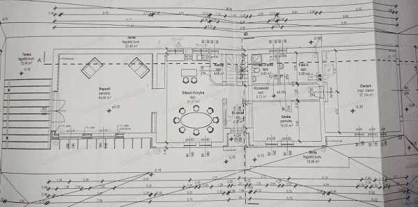
Gödöllőn az egyetemi erdő mellett, csendes, nyugodt zsákutcában újszerű állapotú, kiváló elosztású, nappali + 6 szobás, garázsos családi ház eladó! A 237nm-es ingatlan 2006-ban épült, 30-as porotherm tégla falazattal + 6cm dyrvit szigeteléssel, hőszigetelt üvegezésű fa nyílászárókkal, Bramac cserépfedéssel. Földszinten előszoba, hatalmas nappali, tágas konyha-étkező kamrával, közlekedő, egy 15nm-es szoba, fürdő-Wc, fűtőhelyiség, 38nm-es garázs és egy kiváló déli tájolású, 72,5nm-es terasz lett kialakítva. Emeleten 5 kényelmes méretű szoba, gardrób, erkélyes közlekedő, dupla mosdós-zuhanyzós fürdőszoba és külön mellékhelyiség található. Az épület riasztóval, kamerás kaputelefonnal és elektromos garázskapuval felszerelt. Fűtéséről 24Kw-os Buderus cirkó gondoskodik radiátorokkal és padlófűtéssel, ill. 3db hűtő-fűtő klíma is rendelkezésre áll. A 720nm-es telek elrendezésének köszönhetően könnyen karbantartható. Jelenleg örökzöldek, fenyőfák, hárs-, dió-, meggyfa és szederbokor díszíti, valamint a gyerekeknek kerti játékok, sütögetéshez tűzrakóhely és egy fa tároló is helyet kapott még. A növények folyamatos gondozását locsolórendszer segíti! Bevásárlóközpont, buszmegálló gyalog 500m-re, iskola, óvoda, vasútállomás, hévmegálló 1500m-en belül elérhető közelségben van! A konyhabútor szigettel, gépekkel együtt az ár részét képezi! Irányár: 199,9Mft Hivatkozási szám: 2517903. Megtekinthető telefonos időpont egyeztetés alapján: Sápi Tamás +36 20 944-7025 sapitamas@godolloi.hu GÖDÖLLŐ INGATLANKÖZPONT - www.godolloi.hu: Gödöllő és környéke legnagyobb ingatlan választéka /Gödöllő, Szada, Veresegyház, Kistarcsa, Kerepes, Erdőkertes/ eladó-kiadó családi ház, telek, lakás! Ingatlan építés és felújítás!
Lépjen velünk kapcsolatba!
Sápi Tamás
Gödöllő Ingatlanközpont
A partner további hirdetései
Kapcsolatfelvételhez kattintson
A tétel adatlapján feltüntetett leírások a rendelkezésre álló információink alapján készültek. Az eszközök működőképességét, rejtett hibáit nem vizsgáltuk, azokról nincs tudomásunk. Kérjük, hogy licitálás előtt személyesen is tekintsék meg a megvásárolni kívánt tételeket, mert utólag nem tudunk reklamációt elfogadni. A szállítási és bontási költségek a vásárlót terhelik. A szállítást akkor lehet megkezdeni, ha az eladó az erre vonatkozó engedélyt megadta. A leütési ár nem tartalmazza az ÁFÁ-t és a vásárlói felárat.