2182 Domony
Ingatlan sorszáma: 5990
650 000 Ft / m2
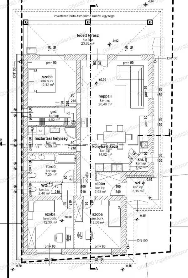
Domonyban megbízható építő által épülő nappali + 3 szobás energiatakarékos családi ház 912m2-es telken eladó! Műszaki adatok: - Az ingatlan hasznos lakóterülete 106m2, fedett terasza 23,62m2. - Falazata 30-as PTH téglából épül, kívül 15cm dryvit szigeteléssel. - Tetőszerkezete betoncseréppel lesz fedve, a fafödémre 25cm vastag ásványgyapot kerül. - Minden helyiségben 3 réteg üvegezésű thermo műanyag nyílászárók kerülnek beépítésre. - Fűtéséről kondenzációs kazán gondoskodik padlófűtéssel, de igény esetén megbeszélés alapján hőszivattyú és klíma is kérhető. - Hideg-, meleg burkolatok, beltéri ajtók, szaniterek a műszaki leírásban meghatározott értékben szabadon választhatók. - Riasztó előkésztése az ár részét képezi. Elosztás: - Előtér, nappali-konyha-étkező, kamra, 3 szoba, gardrób, fürdőszoba, wc, háztartási helyiség + 23,62m2 fedett terasz Telek: - 912m2-es telken helyezkedik el. - a kerítés betonpillér közti deszkázással lesz megoldva, a kiskapu, illetve a nagykapu elektromos kiépítése elkészül motorizálás nélkül. Környék: - Aszód autóval 1-2 percre, Gödöllő 10-15 percre van, az M3-as autópályafelhajtó pedig 5 perc alatt érhető el. Az ingatlan megbízható, referenciákkal rendelkező építő által kiváló minőségben épül, energetikai besorolása "B" közel 0 energiaigényű. Várható kulcsrakész átadás: 2025. nyár Építő még nem kezdte el az építkezést, vevő igényei szerint építi fel a házat 6-8 hónap alatt! Irányár: 68,9MFt A látványtervek mellett feltöltött képek a kivitelező előző házáról készültek. Komoly érdeklődés esetén a referencia házak személyesen is megtekinthetők! Hivatkozási szám:2517788. Megtekinthető telefonos időpont egyeztetés alapján: Sápi Balázs +36 20 772-2429 sapibalazs@godolloi.hu GÖDÖLLŐ INGATLANKÖZPONT - www.godolloi.hu: Gödöllő és környéke legnagyobb ingatlan választéka /Gödöllő, Szada, Veresegyház, Kistarcsa, Kerepes, Erdőkertes, Fót, Dunakeszi/ eladó-kiadó családi ház, telek, lakás! Ingatlan építés és felújítás!
Lépjen velünk kapcsolatba!
Sápi Balázs
Gödöllő Ingatlanközpont
A partner további hirdetései
Kapcsolatfelvételhez kattintson
A tétel adatlapján feltüntetett leírások a rendelkezésre álló információink alapján készültek. Az eszközök működőképességét, rejtett hibáit nem vizsgáltuk, azokról nincs tudomásunk. Kérjük, hogy licitálás előtt személyesen is tekintsék meg a megvásárolni kívánt tételeket, mert utólag nem tudunk reklamációt elfogadni. A szállítási és bontási költségek a vásárlót terhelik. A szállítást akkor lehet megkezdeni, ha az eladó az erre vonatkozó engedélyt megadta. A leütési ár nem tartalmazza az ÁFÁ-t és a vásárlói felárat.