2170 Aszód
Ingatlan sorszáma: 589
897 308 Ft / m2
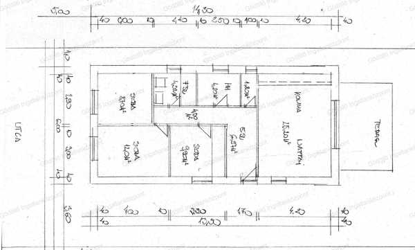
Ne maradjon le róla! Kiváló lokáció! Jó ár-érték arány! Aszód központi részén, megbízható, referenciákkal rendelkező cég által, magas műszaki tartalommal, kiváló energetikával épülő, nagyon jó elosztású, nappali+3 szobás önálló családi ház LAKÁSÁRON eladó! Műszaki adatok: - 30-as okostégla falazat + 15 cm dryvit szigetelés, - födémen 25cm vastag kőzetgyapot, - 10cm lábazati Xps és 10 cm aljzatszigetelés, - 3 réteg thermo üvegezésű műanyag nyílászárók, - kondenzációs kazán + padlófűtés egész felületen, - 2db hűtő-fűtő inverteres klíma. Ár tartalmazza: - Hansgrohe csaptelepeket 25.000.-Ft/db, - épített egyedi zuhanyzót, - kádat 85.000.-Ft, - beépített tartályos Wc-t. - bejárati ajtó (teli) 150.000.-Ft, - laminált padlót 6.000.Ft/nm, - hidegburkolatokat 6.500.-Ft/nm, - beltéri ajtókat 50.000.-Ft/db értékben. Elosztás: - Előtér, nappali-konyha-étkező, kamra, közlekedő, 3 szoba, kádas fürdőszoba, háztartási helyiség/zuhanyzós fürdő + 12nm terasz. Telek: - 326nm telek, a ház körül 50cm széles betonjárda. - Tereprendezés, kerítés kiépítése az ár részét képezi. Környék: - Központhoz közeli elhelyezkedésnek köszönhetően gyalog minden - buszmegálló, vonatállomás, iskola, óvoda, üzletek stb. - percek alatt könnyen elérhető. Az ingatlant megbízható kivitelező építi! Burkolatok, belső ajtók a vevői igényei szerint még szabadon választhatók! Kérésre teljes műszaki tartalmat, alaprajzot szívesen küldünk! Várható kulcsrakész átadás: 2026. III. negyedév. Ár: 69,99M Ft Hivatkozási szám: 2518230. Megtekinthető telefonos időpont egyeztetés alapján: Sápi Balázs +36 20 772-2429 sapibalazs@godolloi.hu GÖDÖLLŐ INGATLANKÖZPONT - www.godolloi.hu: Gödöllő és környéke legnagyobb ingatlan választéka /Gödöllő, Szada, Veresegyház, Kistarcsa, Kerepes, Erdőkertes, Fót, Dunakeszi/ eladó-kiadó családi ház, telek, lakás! Ingatlan építés és felújítás!
Lépjen velünk kapcsolatba!
Sápi Balázs
Gödöllő Ingatlanközpont
A partner további hirdetései
Kapcsolatfelvételhez kattintson
A tétel adatlapján feltüntetett leírások a rendelkezésre álló információink alapján készültek. Az eszközök működőképességét, rejtett hibáit nem vizsgáltuk, azokról nincs tudomásunk. Kérjük, hogy licitálás előtt személyesen is tekintsék meg a megvásárolni kívánt tételeket, mert utólag nem tudunk reklamációt elfogadni. A szállítási és bontási költségek a vásárlót terhelik. A szállítást akkor lehet megkezdeni, ha az eladó az erre vonatkozó engedélyt megadta. A leütési ár nem tartalmazza az ÁFÁ-t és a vásárlói felárat.