2481 Velence
Ingatlan sorszáma: 5879
2 112 676 Ft / m2
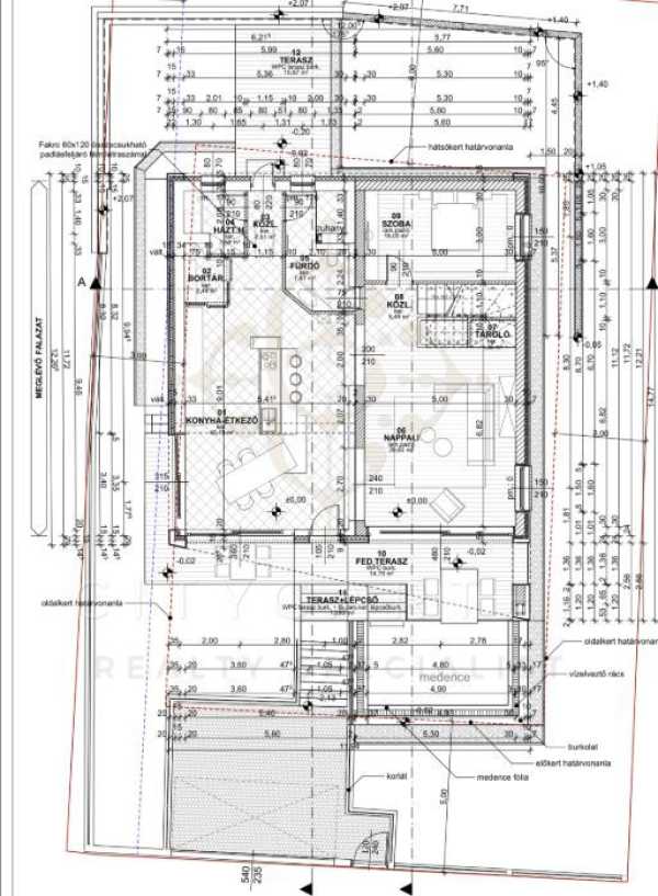
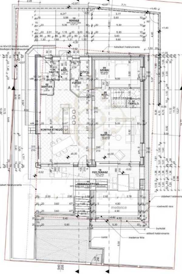
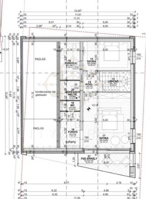
C I T Y C A R T E L INTERNATIONAL LUXURY REAL ESTATE AGENCY bemutatja: Budapesttől 40 km-re a Velencei-tó egyik legkedveltebb részén, Velencén, közvetlen a sétánynál kínálunk eladásra egy 213 nm-es ( + padlás), kétszintes, 4 szobás extravagáns részletekkel, modern eleganciával rendelkező, neves tervezők által alkotott exkluzív luxusvillát, amely 2023-ban épült, és minden igényt kielégítő módon lett megalkotva. A 540 nm-es parkosított kert, a lélegzetelállító, tóparti panoráma, a feszített víztükrű élménymedence és a teljes prémium berendezés a vételár részét képezik – ez az ingatlan valódi ritkaság a piacon. Kifinomult enteriőr és élhető luxus A villa elegáns, letisztult belső tereit neves tervezők álmodták meg, a részletekben rejlő minőség azonnal magával ragadja az embert. A képeken látható, gondosan összeválogatott designbútorok – MaxCity, KARE, Dutch Home Studio, Art&Deco – a vételár részét képezik, így az ingatlan teljesen berendezve, azonnal birtokba vehető. Elrendezés és felszereltség: - Tágas amerikai konyhás nappali, 3 hálószoba, 3 fürdőszoba, gépház, padlástér, mosókonyha, bortrezor. - 2 férőhelyes garázs, az elektromos töltőnek ki van alakítva a hely. - Kerti tároló. - Egyedi tervezésű beépített bútorok, Armani tapéta - Internorm nyílászárók, tolóajtókkal és szúnyoghálóval - Legrand okosotthon rendszer, REHAU termosztát, központi BWT vízlágyító - Ariston gázkazán, padlófűtés, GREE prémium klímák - Wolf hővisszanyerős szellőztető rendszer Tetőfedés: PREFA Prefalz rendszer rejtett ereszcsatornával Felszereltség és műszaki tartalom: - Padlófűtés - Ariston gázkazán - PARADOX riasztórendszer MultiAlarm távfelügyelettel - WOLF hővisszanyerős szellőztető rendszer - GREE U Crown Silver prémium klímák - INTERNORM nyílászárók, hatalmas üvegfelületek toló ajtóval, INTERNORM szúnyoghálóval - SCHLOTTERER zsaluzia, intelligens árnyékolástechnika - LEGRAND okosotthon rendszer - REHAU termosztát kiépítve a házban - Központi BWT vízlágyító a házban - BOSCH konyhai gépek, BOSCH mosó és szárítógépek - Beépített BOR trezor - Beltéri sziklakert csepegtetőrendszerrel kiépítve - INTERNORM ujjlenyomat olvasós bejárati ajtó - Armani tapéta - ELTER lámpák/csillárok/függesztékek - Egyedi tervezésű prémium beépített bútorok - MaxCity, KARE, Dutch Home Studio, Art&Deco prémium bútorok Kert és kültéri élmények – saját oázis a tó partján - Feszített víztükrű, fűthető-hűthető élménymedence eltolható, teraszként is használható medence fedéssel - Két egyedileg gyártott PALMIYE pergola elektromosan állítható/eltolható tetővel, elektromos szélfogóval, hangulatvilágítással - GRILLANDIA prémium kültéri grillkonyha – Boretti KAMADO sütő, UV-, fagy- és foltálló polírozott gránit munkalap, rozsdamentes acél mosogató, kültéri rozsdamentes hűtő, bár rész két székkel - PEDRALI designer olasz kerti étkezőszékek, VINCENT SHEPPARD kerti bútorok, napozóágyak - Traventin Silver mészkő teraszburkolat - Holland pázsit (Kyodai luxus nyári pázsit), kerti öntözőrendszer, Philips állítható hangulatvilágítás - ELTER kerti lámpák - TECHSON kamerarendszer, teljes kültéri wifi-lefedettség - Kiépített Wifi hálózat az egész telken Biztonság, kényelem és technológia kompromisszumok nélkül - Kétállásos garázs, elektromos autó töltésre előkészítve - Hörmann wifi-vezérelt garázskapu - NÍVÓ minőségi kerítés és ujjlenyomat olvasós kertkapuval - Hikvision kamerás kaputelefon - PARADOX riasztórendszer MultiAlarm távfelügyelettel Főbb adatok: Alapterület: 213 nm (+ nagy padlástér és nagy teraszok) Telekterület: 540 nm Szobák száma: 4 Építés éve: 2023 Állapot: újszerű, azonnal költözhető Komfort: luxus Kilátás: tóra panorámás Fűtés: padlófűtés, gázkazán, hűtő-fűtő klíma, hővisszanyerő szellőzés Parkolás: saját garázs (2 férőhely), kültéri beálló Közművek: víz, csatorna, gáz, áram (3x32 A) Homlokzat: BITTMAN CREATION által kivitelezett CASATI designfestés Ingatlan besorolása: lakóingatlan Berendezés: a teljes bútorzat az árban Ár: 450 millió Ft – teljes, kiváló minőségű berendezéssel együtt Az ingatlan tehermentes, azonnal birtokbavehető, besorolása lakóingatlan, Budapesti ingatlan beszámítása lehetséges. Kivételes lehetőség, ha Ön egy olyan otthonra vágyik, ahol minden nap a nyugalomról, a kényelemről és a minőségről szól – közvetlenül a Velencei-tó partján. Amennyiben a hirdetés felkeltette érdeklődését, keressen bizalommal. ÜDVÖZLETTEL: DR VINCELLÉR ZSUZSA ÜGYVEZETŐ, CEO, LUXURY SPECIALIST +36 30-815-2510 V.ZSUZSA@CITYCARTEL.HU CITY CARTEL BUDA KFT. CITY CARTEL FRANCHISE HUNGARY KFT. 1118 BUDAPEST, HEGYALJA ÚT 54. 1026 BUDAPEST, SZILÁGYI ERZSÉBET FASOR 121. BUDAGYÖNGYE BEVÁSÁRLÓKÖZPONT
Lépjen velünk kapcsolatba!
Dr. Vincellér Zsuzsa
CITY CARTEL BUDAPEST ÉS AGGLOMERÁCIÓ
A partner további hirdetései
Kapcsolatfelvételhez kattintson
A tétel adatlapján feltüntetett leírások a rendelkezésre álló információink alapján készültek. Az eszközök működőképességét, rejtett hibáit nem vizsgáltuk, azokról nincs tudomásunk. Kérjük, hogy licitálás előtt személyesen is tekintsék meg a megvásárolni kívánt tételeket, mert utólag nem tudunk reklamációt elfogadni. A szállítási és bontási költségek a vásárlót terhelik. A szállítást akkor lehet megkezdeni, ha az eladó az erre vonatkozó engedélyt megadta. A leütési ár nem tartalmazza az ÁFÁ-t és a vásárlói felárat.