1051 Budapest, V. kerület Belváros
Ingatlan sorszáma: 5859
5 194 515 Ft / m2
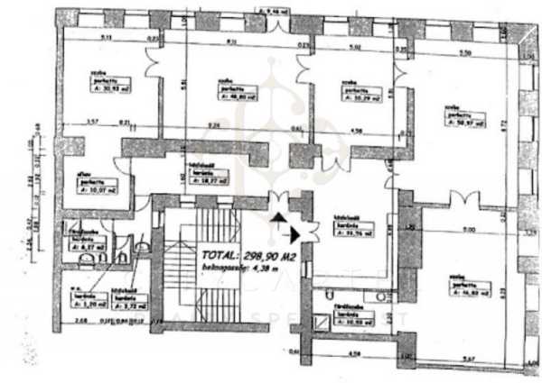
CITYCARTEL INTERNATIONAL LUXURY REAL ESTATE AGENCY bemutatja: Exkluzív saroklakás Budapest szívében, a Bazilika szomszédságában Budapest egyik legpatinásabb részén, az V. kerület szívében, a Hercegprímás utcában, közvetlenül a Szent István Bazilikára néző, elegáns liftes épületben páratlan adottságokkal rendelkező, 299 nm-es, 6 szobás, nagy belmagasságú saroklakás. Az első emeleti, impozáns ingatlan rendkívül világos és tágas, kifinomult részletekkel díszített belső terekkel rendelkezik. Körbejárhatósága és két külön bejárata lehetőséget biztosít akár két szeparált iroda kialakítására is. Főbb jellemzők: Lokáció: Budapest belvárosának egyik legexkluzívabb részén, a Bazilika közvetlen közelében Alapterület: 299 nm Szobák száma: 6 Emelet: 1. emelet (liftes ház) Bútorozás: Bútorozatlan Külön bejáratok: Igen, két külön bejárattal rendelkezik Körbejárható térszerkezet Azonnal költözhető Elegancia, presztízs és kiváló elhelyezkedés egybe! Ha Ön is egy igazán exkluzív ingatlanra vágyik Budapest belvárosában, ne hagyja ki ezt a különleges lehetőséget! További információért és megtekintésért várom hívását!
Lépjen velünk kapcsolatba!
Dr. Vincellér Zsuzsa
CITY CARTEL BUDAPEST ÉS AGGLOMERÁCIÓ
A partner további hirdetései
Kapcsolatfelvételhez kattintson
A tétel adatlapján feltüntetett leírások a rendelkezésre álló információink alapján készültek. Az eszközök működőképességét, rejtett hibáit nem vizsgáltuk, azokról nincs tudomásunk. Kérjük, hogy licitálás előtt személyesen is tekintsék meg a megvásárolni kívánt tételeket, mert utólag nem tudunk reklamációt elfogadni. A szállítási és bontási költségek a vásárlót terhelik. A szállítást akkor lehet megkezdeni, ha az eladó az erre vonatkozó engedélyt megadta. A leütési ár nem tartalmazza az ÁFÁ-t és a vásárlói felárat.