8900 Zalaegerszeg
Ingatlan sorszáma: 5849
936 364 Ft / m2
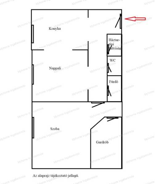
Eladó modern okos otthon Zalaegerszeg belvárosában - hosszútávú bérlettel és a lakás teljes berendezésével együtt együtt, a lakás teljes berendezéssel Eladó Zalaegerszeg szívében, a Széchenyi téren egy teljesen felújított, 55 m²-es, harmadik emeleti, modern okos otthon, amely jelenleg hosszútávra ki van adva, így csak a bérlettel együtt vásárolható meg. A bérlő nyár közepéig biztosan marad, így az új tulajdonos azonnali, stabil hozamot élvezhet. A lakás elrendezése: - 2 szoba: hálószoba beépített gardróbbal + nappali/étkező, mely igény szerint plusz hálószobává alakítható - Modern, új konyha reggelizőpulttal és panorámás kilátással a történelmi belvárosra - Praktikus háztartási helyiség - Új burkolatok, nyílászárók, csempék, szaniterek Prémium technológia és kényelem: - Okos otthon rendszer: világítás, klíma és alumínium redőnyök távolról irányíthatók - Energiatakarékos fűtés/hűtés modern klímaberendezéssel - Szúnyogháló minden nyílászárón - Fürdőszobában és WC-ben külön elszívó - Nyugati fekvés: napfényes, barátságos nappali Elhelyezkedés: - Belvárosi lokáció, minden szolgáltatás pár perc sétára Pénzügyi előnyök: - Per- és tehermentes ingatlan - Azonnali bevételi lehetőség a meglévő bérleti szerződéssel - Otthon Start Program keretében 3%-os hitel igénybe vehető - A vételár tartalmazza a lakás teljes új, modern berendezését Ez az egyedülálló, modern okos otthon ideális választás befektetőknek, akik azonnali biztos hozamot keresnek, de azoknak is, akik hosszabb távon maguknak képzelik el a belvárosi élet kényelmét. Ne maradjon le erről a különleges lehetőségről - hívjon most és egyeztessünk megtekintést! Az ingatlanban otthon Myhome
Lépjen velünk kapcsolatba!
Berki Mónika
Myhome Ingatlaniroda
A partner további hirdetései
Kapcsolatfelvételhez kattintson
A tétel adatlapján feltüntetett leírások a rendelkezésre álló információink alapján készültek. Az eszközök működőképességét, rejtett hibáit nem vizsgáltuk, azokról nincs tudomásunk. Kérjük, hogy licitálás előtt személyesen is tekintsék meg a megvásárolni kívánt tételeket, mert utólag nem tudunk reklamációt elfogadni. A szállítási és bontási költségek a vásárlót terhelik. A szállítást akkor lehet megkezdeni, ha az eladó az erre vonatkozó engedélyt megadta. A leütési ár nem tartalmazza az ÁFÁ-t és a vásárlói felárat.