2151 Fót
Ingatlan sorszáma: 575
1 195 726 Ft / m2
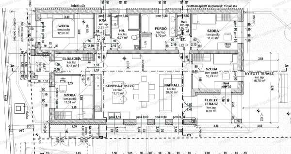
Fót csendes, nyugodt részén épülő nappali + 4 szobás, duplakomfortos családi ház referenciákkal rendelkező, megbízható kivitelezőtől eladó! Műszaki adatok: -30-as porotherm tégla falazat + 15cm homlokzati grafit dryvit szigetelés, - E gerendás betonfödém, - 3 réteg hőszigetelt üvegezésű, 5 légkamrás fehér műanyag nyílászárók, - antracit színű beton cserépfedés, - horganyzott acéllemez csatorna antracit színben, - hőszivattyú padlófűtéssel, nappaliban kandalló, - inverteres hűtő-fűtő klíma, - hideg- melegburkolatok, szaniterek a vevő igényei szerint még szabadon választhatók! Elosztás: - Előszoba, nappali-konyha-étkező, 4 szoba, közlekedő, kádas fürdőszoba, zuhanyzós fürdő/háztartási helyiég, vendégmosdó + 4nm kültéri tároló, 8,39nm fedett és 16,75nm nyitott terasz. Telek: - 545nm telek, parkoláshoz kocsibeálló kerül kialakításra. Környék: Nagyon jó környék, közelben iskola, óvoda, orvosi rendelő, boltok, buszmegálló. M2, M3 autópálya 5-10 perc alatt elérhető. Az ingatlan számos referenciával rendelkező, megbízható kivitelező építi! Komoly érdeklődés esetén a referencia házak személyesen is megtekinthetők! Kérésre teljes műszaki tartalmat, alaprajzot szívesen küldünk! Céges építkezés, új építésű ingatlanokra vonatkozó kedvezmények igénybe vehetők! Irányár: 139,9Mft Hivatkozási szám: 2518210. Megtekinthető telefonos időpont egyeztetés alapján: Sápi Balázs: +36 (20) 772-2429 sapibalazs@godolloi.hu GÖDÖLLŐ INGATLANKÖZPONT - www.godolloi.hu: Gödöllő és környéke legnagyobb ingatlan választéka /Gödöllő, Szada, Veresegyház, Kistarcsa, Kerepes, Erdőkertes, Fót, Dunakeszi/ eladó-kiadó családi ház, telek, lakás! Ingatlan építés és felújítás
Lépjen velünk kapcsolatba!
Sápi Balázs
Gödöllő Ingatlanközpont
A partner további hirdetései
Kapcsolatfelvételhez kattintson
A tétel adatlapján feltüntetett leírások a rendelkezésre álló információink alapján készültek. Az eszközök működőképességét, rejtett hibáit nem vizsgáltuk, azokról nincs tudomásunk. Kérjük, hogy licitálás előtt személyesen is tekintsék meg a megvásárolni kívánt tételeket, mert utólag nem tudunk reklamációt elfogadni. A szállítási és bontási költségek a vásárlót terhelik. A szállítást akkor lehet megkezdeni, ha az eladó az erre vonatkozó engedélyt megadta. A leütési ár nem tartalmazza az ÁFÁ-t és a vásárlói felárat.