9029 Győr
Ingatlan sorszáma: 5648
1 006 757 Ft / m2
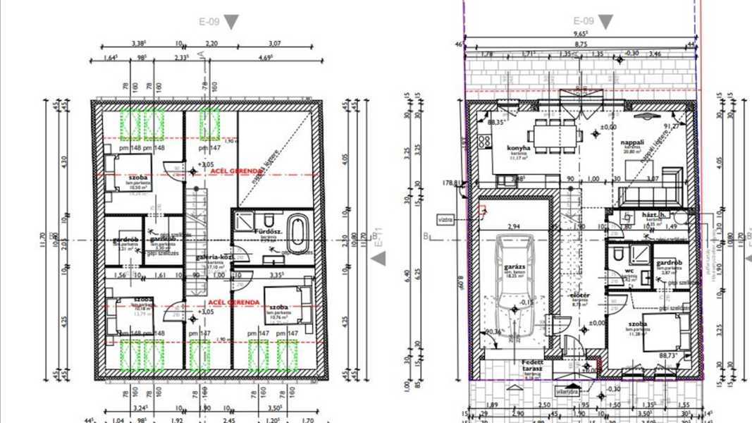
Új építésű, kulcsrakész kétszintes 5 szobás családi ház eladó Győr-Szigetben, csendes utcában Győr-Szigetben, egy 200 m²-es telken, nyugodt, családi házas környezetben kínáljuk eladásra ezt a modern, kétszintes, kulcsrakész családi házat, amely igényes kivitelezéssel és jól átgondolt alaprajzzal készül. Főbb adatok: Hasznos alapterület: 147,87 m² (≈148 m²) Alsószint: 85,4 m² Emelet 63 m2 Elrendezés: Földszint: tágas, galériás nappali konyhával és étkezővel, 1 hálószoba, 1 fürdőszoba, garázs + terasz Emelet: 3 hálószoba, 1 fürdőszoba WC-vel, 3 gardróbszoba Parkolás: garázs + udvari beálló Külső rész: terasz kapcsolódik a földszinti nappalihoz Műszaki tartalom és felszereltség: Monolit vasbeton födém Ezüstös-szürke betoncserép tető 15 cm XPS hőszigeteléssel Szürke nyílászárók, utcafronti oldalon redőnnyel Elektromos garázskapu Padlófűtés hőszivattyúval (fűtés-hűtés rendszerrel) Galériás nappali, világos terek Beépített, gépesített konyha: konyhabútor, sütő, főzőlap, elszívó, mikrohullámú sütő Lámpatestek felszerelve a ház minden helyiségében. Várható atadás 2026 Április A ház kulcsrakész állapotban kerül átadásra, így a leendő tulajdonos azonnal beköltözhet. A modern felszereltség, a kényelmes elrendezés és a csendes elhelyezkedés révén ez az ingatlan kiváló választás családok számára.
Lépjen velünk kapcsolatba!
Varga Norbert
OtthonTér
A partner további hirdetései
Kapcsolatfelvételhez kattintson
A tétel adatlapján feltüntetett leírások a rendelkezésre álló információink alapján készültek. Az eszközök működőképességét, rejtett hibáit nem vizsgáltuk, azokról nincs tudomásunk. Kérjük, hogy licitálás előtt személyesen is tekintsék meg a megvásárolni kívánt tételeket, mert utólag nem tudunk reklamációt elfogadni. A szállítási és bontási költségek a vásárlót terhelik. A szállítást akkor lehet megkezdeni, ha az eladó az erre vonatkozó engedélyt megadta. A leütési ár nem tartalmazza az ÁFÁ-t és a vásárlói felárat.