2100 Gödöllő
Ingatlan sorszáma: 555
505 470 Ft / m2
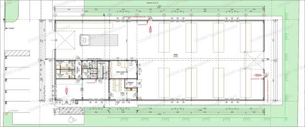
Gödöllőn újonnan épülő "A" kategóriás 457m2 ipari csarnok eladó! Az irodai részben vannak (öltözők, mosdó, konyha, aula, emeleten irodák, WC stb.) A csarnok elején és hátulján 4m-es ipari kapuk vannak. Az építkezés 2025 márciusban indul és várhatóan szeptember, október körül készül el. Az építkezés engedélyes tervel rendelkezik. Az ingatlanon víz, csatorna, 3x32A elektromos áram ami akár 3x63Are növelhető. Gáz beállás a telken belül. Az ingatlan fekvése és megközelítése kiváló, M3, M0 mellette fut, az M31ről gyorsan megközelíthető. Irányár: 231Mft Hivatkozási szám: 2518179. Megtekinthető telefonos időpont egyeztetés alapján: Pintér Roland +36 20 539-1988 pinterroland@godolloi.hu GÖDÖLLŐ INGATLANKÖZPONT - www.godolloi.hu: Gödöllő és környéke legnagyobb ingatlan választéka /Gödöllő, Szada, Veresegyház, Kistarcsa, Kerepes, Erdőkertes/ eladó-kiadó családi ház, telek, lakás! Ingatlan építés és felújítás!
Lépjen velünk kapcsolatba!
Pintér Roland
Gödöllő Ingatlanközpont
A partner további hirdetései
Kapcsolatfelvételhez kattintson
A tétel adatlapján feltüntetett leírások a rendelkezésre álló információink alapján készültek. Az eszközök működőképességét, rejtett hibáit nem vizsgáltuk, azokról nincs tudomásunk. Kérjük, hogy licitálás előtt személyesen is tekintsék meg a megvásárolni kívánt tételeket, mert utólag nem tudunk reklamációt elfogadni. A szállítási és bontási költségek a vásárlót terhelik. A szállítást akkor lehet megkezdeni, ha az eladó az erre vonatkozó engedélyt megadta. A leütési ár nem tartalmazza az ÁFÁ-t és a vásárlói felárat.