2100 Gödöllő
Ingatlan sorszáma: 5417
935 294 Ft / m2
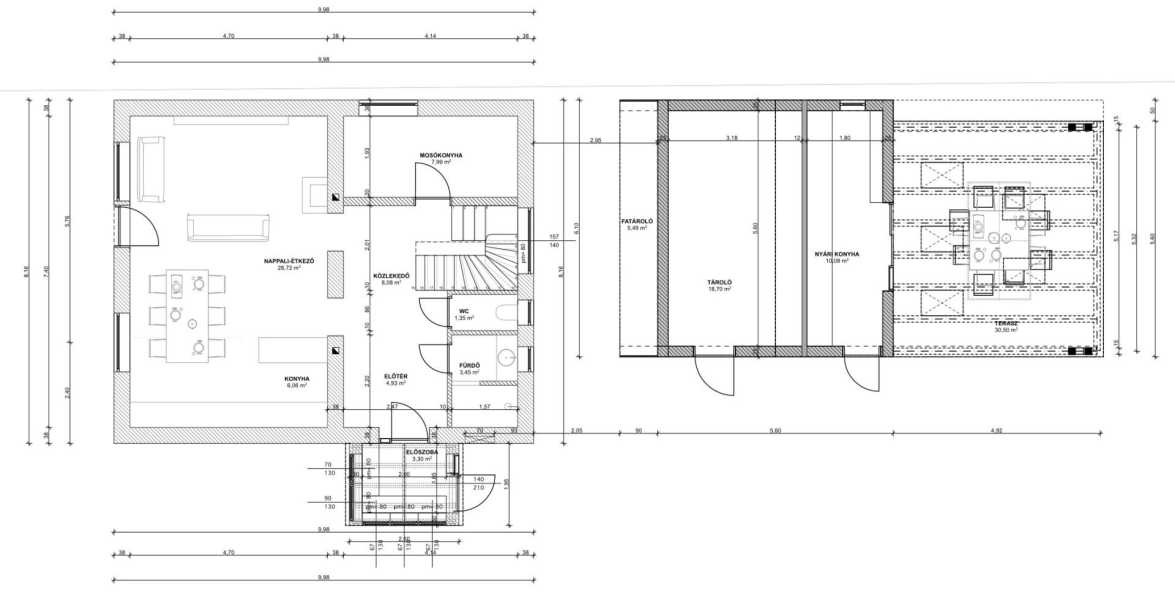
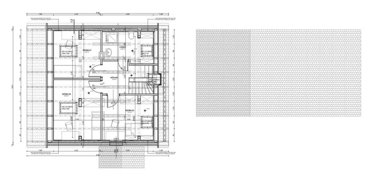
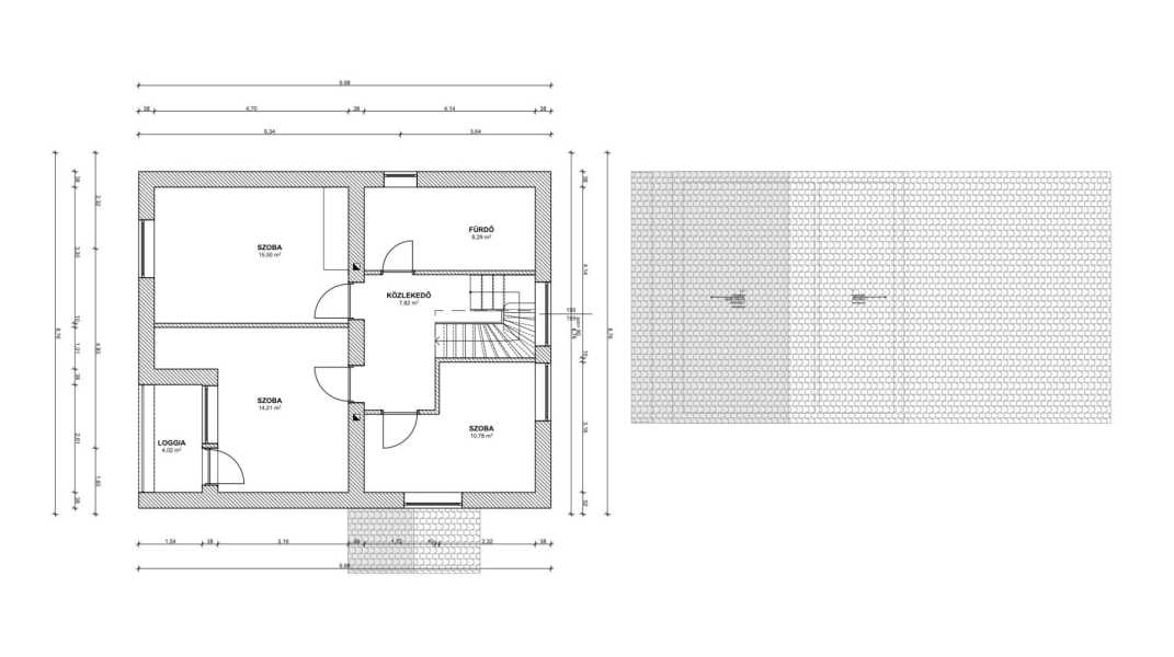
Gödöllőn, a központhoz közel, folyamatosan karbantartott, újszerű állapotú, nappali + 6 szobás, garázsos családi ház eladó! A 720nm-es, gondozott telken elhelyezkedő családi ház 1982-ben épült, tégla főfalazattal, amelyre 10cm dryvit hőszigetelés került. Az ingatlan és a kert is rendszeresen karbantartott, megkímélt, rendezett állapotú. Elosztás: Földszint: - előszoba, - nappali hangulatos cserépkandallóval, - konyha - étkező extra minőségű, gépesített konyhabútorral, - zuhanyzós fürdőszoba, - külön mellékhelyiség, - mosókonyha Emelet: - 3 szoba (egyik erkélyes), - kádas, dupla mosdós fürdőszoba, + praktikus szennyesledobó (mosókonyhába érkezik) Tetőtér: - 3 szoba, - zuhanyzós fürdőszoba Műszaki jellemzők: - műanyag nyílászárók, - felújított tetőszerkezet, - 2 db klímaberendezés, - alacsony rezsiköltség, - gázkazán + radiátorok, nappaliban cserépkandalló Kert és extra felszereltség: - 25nm felújíott melléképület, amely garázsnak, tárolónak és nyári konyhának is használható, - családi összejövetelekhez kiválóan alkalmas, 30nm-es fedett, kertkapcsolatos terasz, - elektromos kapu, - automata öntözőrendszer + locsolásra alkalmas fúrt kút, - rendezett kert dísznövényekkel, örökzöldekkel, - kis játszótér gyermekek részére, Elhelyezkedés: Városközpont, iskolák, óvodák, közintézmények gyorsan és könnyen elérhetők, a környék csendes, mégis kiváló infrastruktúrával rendelkezik. A gépesített konyhabútor, valamint a beépített bútorok az ár részét képezik. Irányár: 159Mft Hivatkozási szám: 2518248. Megtekinthető telefonos időpont egyeztetés alapján: Sápi Tamás +36 20 944-7025 sapitamas@godolloi.hu GÖDÖLLŐ INGATLANKÖZPONT - www.godolloi.hu: Gödöllő és környéke legnagyobb ingatlan választéka /Gödöllő, Szada, Veresegyház, Kistarcsa, Kerepes, Erdőkertes/ eladó-kiadó családi ház, telek, lakás! Ingatlan építés és felújítás!
Lépjen velünk kapcsolatba!
Sápi Tamás
Gödöllő Ingatlanközpont
A partner további hirdetései
Kapcsolatfelvételhez kattintson
A tétel adatlapján feltüntetett leírások a rendelkezésre álló információink alapján készültek. Az eszközök működőképességét, rejtett hibáit nem vizsgáltuk, azokról nincs tudomásunk. Kérjük, hogy licitálás előtt személyesen is tekintsék meg a megvásárolni kívánt tételeket, mert utólag nem tudunk reklamációt elfogadni. A szállítási és bontási költségek a vásárlót terhelik. A szállítást akkor lehet megkezdeni, ha az eladó az erre vonatkozó engedélyt megadta. A leütési ár nem tartalmazza az ÁFÁ-t és a vásárlói felárat.