4400 Nyíregyháza Belváros
Ingatlan sorszáma: 5367
954 545 Ft / m2
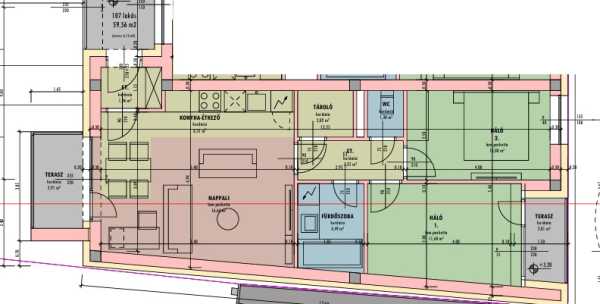
Belvárosi, új építésű, prémium kategóriás társasházi lakás! Foglalja le most! Társasház 4 lakószinten 26 lakással, 2 szintes teremgarázsban 26 parkolóállással, 1 irodával Szintek: Alagsor: teremgarázs 16 parkolóval Földszint: teremgarázs 10 parkolóval, tárolók, iroda, előcsarnok Az első három szinten 7-7 lakás, a tetőtérben 5 lakás van Közvetlen kapcsolat a belső, zárt udvarra Lift, előcsarnok, megvásárolható tárolók, belső, zárt udvar Prémium anyagok, modern kivitelezés, hőszivattyús rendszer, A+ energetikai besorolás 1. emeleti lakás jellemzői: - 60 m2 lakótér - terasz: 2,81, terasz : 3,91 m2 - amerikai konyhás nappali + 2 külön nyíló hálószoba - fürdőszoba WC külön, előtér - választható belső burkolat, szaniter, világítótestek - vásárolható teremgarázsi parkóló, tárolóheyiséges parkolóállás - várható átadás 2026 ősz Tágas és funkcionális. Energiahatékony, alacsony rezsi. Kiváló lehetőség befektetőknek és magánszemélyeknek is! Biztosított a modern városi élet, minden szükséges szolgáltatás, üzletek és szórakozási lehetőségek. Bővebb információkért, teljes körű, ingyenes banki ügyintézéssel várom hívását!
Lépjen velünk kapcsolatba!
Zborayné Barkaszi Anikó
Elements Group
A partner további hirdetései
Kapcsolatfelvételhez kattintson
A tétel adatlapján feltüntetett leírások a rendelkezésre álló információink alapján készültek. Az eszközök működőképességét, rejtett hibáit nem vizsgáltuk, azokról nincs tudomásunk. Kérjük, hogy licitálás előtt személyesen is tekintsék meg a megvásárolni kívánt tételeket, mert utólag nem tudunk reklamációt elfogadni. A szállítási és bontási költségek a vásárlót terhelik. A szállítást akkor lehet megkezdeni, ha az eladó az erre vonatkozó engedélyt megadta. A leütési ár nem tartalmazza az ÁFÁ-t és a vásárlói felárat.