9024 Győr Nádorváros
Ingatlan sorszáma: 5138
834 545 Ft / m2
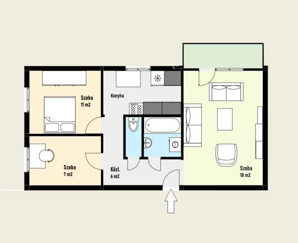
Praktikus elrendezés, városi kényelem, élhető otthon a Szent Imre úton Ez a lakás kiváló választás lehet számodra, ha Győrben három külön nyíló szobát, jó benapozást és mindenhez közeli elhelyezkedést keresel. Az 55 m²-es, nappali + 2 szobás panellakás ideális választás lehet fiatal pároknak vagy kisgyermekes családnak, akik számára fontos a praktikus elosztás, a jó elhelyezkedés, és nem riadnak vissza attól, hogy az otthont a saját igényeikre szabják. NEKED VALÓ EZ A LAKÁS, HA • Fontos, hogy három külön nyíló szobád legyen – nappali + 2 háló jól szeparálható • Előnyt jelent a dél–nyugati fekvés, világos lakótérrel • Olyan környéket keresel, ahol a mindennapi élet kényelmesen szervezhető • Jó megoldás számodra, ha az ingatlan beköltözhető, de korszerűsítési lehetőséget is kínál • Szeretnél erkélyes lakást, liftes házban • Nem akarsz kompromisszumot kötni az elhelyezkedésben – közel a belvároshoz, mégis élhető környezetben Nézd meg az ingatlan részletes bemutatását! https://tothrita.hu/gyor-nadorvarosban-panellakas-elado ELHELYEZKEDÉS – MINDEN KARNYÚJTÁSNYIRA • Győr, Szent Imre út • A Vásárcsarnok néhány perc sétával elérhető – napi bevásárlás egyszerűen • A Győr Belvárosa, a Győr Pláza, valamint az Erzsébet-liget sincsenek messze • Óvoda, iskola, üzletek, szolgáltatások könnyen elérhetők • Praktikus, városi környezet – ideális családi mindennapokra ADOTTSÁGOK • 55 m² lakótér • Nappali + 2 külön nyíló szoba • 5. emeleti lakás, 10 emeletes, liftes társasházban • Dél–nyugati fekvés – világos, napos terek • Erkély • A lakás bútorozott, a bútorok maradhatnak, bár régebbi stílusúak • Az ingatlan jelenlegi állapotában is használható, de korszerűsítéssel sokkal modernebbé varázsolhatod MŰSZAKI JELLEMZŐK • Műanyag nyílászárók • Redőnyök • Laminált parketta és műpadló burkolatok • Régi villany- és vízvezeték-hálózat • Távfűtés • Lift az épületben EGYÉB KÉNYELEM • Közös tároló használati lehetőség • Parkolás az épület környezetében megoldott • Jó lakóközösség REZSI – TERVEZHETŐ KÖLTSÉGEK • Közös költség: kb. 14.600 Ft/hó (szemétdíjjal) • Fűtés: – téli hónapokban legfeljebb 18–20.000 Ft/hó – nyáron kb. 5–6.000 Ft/hó ÁR ÉS FONTOS INFORMÁCIÓK • Irányár: 45.900.000 Ft • Tehermentes ingatlan • Gyorsan birtokba vehető • Jó alap családi otthon kialakításához vagy hosszabb távú befektetéshez Nézd meg az ingatlan részletes bemutatását ide kattintva! https://tothrita.hu/gyor-nadorvarosban-panellakas-elado Ez a lakás nem egy „készre csomagolt” dizájnt kínál, hanem jó elosztást, kiváló elhelyezkedést és biztos alapot ahhoz, hogy egy élhető, városi otthont alakíts ki magadnak és a családodnak. Ha szeretnéd személyesen is megnézni, szívesen megmutatom neked. Tóth Rita Ingatlanközvetítés prémium módszerekkel tothrita.hu +36 30 9059 273 (H-P 9-18 óra)
Lépjen velünk kapcsolatba!
Tóth Rita
Tóth Rita
A partner további hirdetései
Kapcsolatfelvételhez kattintson
A tétel adatlapján feltüntetett leírások a rendelkezésre álló információink alapján készültek. Az eszközök működőképességét, rejtett hibáit nem vizsgáltuk, azokról nincs tudomásunk. Kérjük, hogy licitálás előtt személyesen is tekintsék meg a megvásárolni kívánt tételeket, mert utólag nem tudunk reklamációt elfogadni. A szállítási és bontási költségek a vásárlót terhelik. A szállítást akkor lehet megkezdeni, ha az eladó az erre vonatkozó engedélyt megadta. A leütési ár nem tartalmazza az ÁFÁ-t és a vásárlói felárat.