4400 Nyíregyháza Kertváros
Ingatlan sorszáma: 5111
810 000 Ft / m2
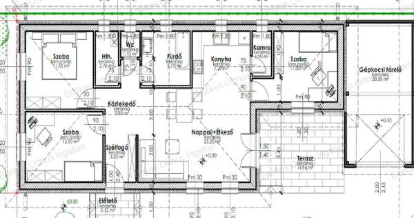
Nyíregyháza egyik kedvelt, csendes városrészén, Ságvári kertvárosban kínáljuk eladásra ezt az utcafronti ikerházat, amely a garázsnál összeépített, így megőrzi a teljes intimitást és a családi házas hangulatot. Minőségi kivitelezés, bizonyított szakmai háttérrel! - Szívből jövő ajánlás, szerethető otthon! Paraméterek és műszaki tartalom: - 90 nm lakótér + 10,75 nm -s járólappal burkolt terasz + garázs, ami 20,35 nm és szintén járólappal burkolt - Falazata Porotherm 30 + DRYVIT rendszer, hőszigetelése 15 cm vastagságban,10 cm-s tégla válaszfalak - Mennyezet: gipszkarton, 1 db lenyitható létrás padlás feljáróval. Padlásfödém szigetelése: 25 cm vastag üveggyapot. - Külső nyílászáró :Kívül - belül fehér színben, terv szerint, 3 rtg üvegezéssel, 72 mm beépítési mélység, 5 légkamrás tokszerkezettel, osztott kivitelű ablakkal, ablak egyik szárnya nyílik és bukik, másik szárnya csak nyílik. - Tető héjazat: Bramac betoncserép, igény szerint 4 színből választható (barna, bordó, antracit és téglavörös), - Az épület hőigényét és meleg víz igényét hőszivattyú biztosítja. Padlófűtési rendszer. Jelenlegi készültség: alapozás Várható átadás 2026 aug. Teljes körű ügyintézés az első lépéstől a kulcsátadásig! Hitelügyintézés Megbízható ügyvéd Energetikai tanúsítvány Zökkenőmentes lebonyolítás
Lépjen velünk kapcsolatba!
Gajdos Brigitta
Értékes Otthon Ingatlan
A partner további hirdetései
Kapcsolatfelvételhez kattintson
A tétel adatlapján feltüntetett leírások a rendelkezésre álló információink alapján készültek. Az eszközök működőképességét, rejtett hibáit nem vizsgáltuk, azokról nincs tudomásunk. Kérjük, hogy licitálás előtt személyesen is tekintsék meg a megvásárolni kívánt tételeket, mert utólag nem tudunk reklamációt elfogadni. A szállítási és bontási költségek a vásárlót terhelik. A szállítást akkor lehet megkezdeni, ha az eladó az erre vonatkozó engedélyt megadta. A leütési ár nem tartalmazza az ÁFÁ-t és a vásárlói felárat.