4400 Nyíregyháza Belváros
Ingatlan sorszáma: 5098
897 391 Ft / m2
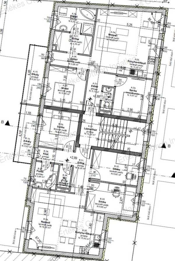
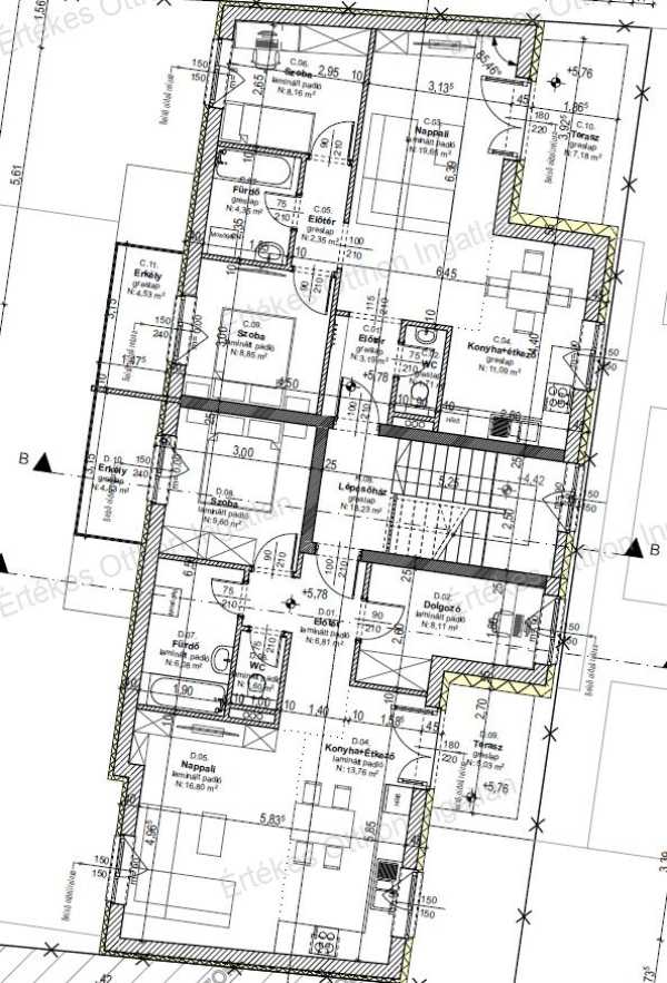
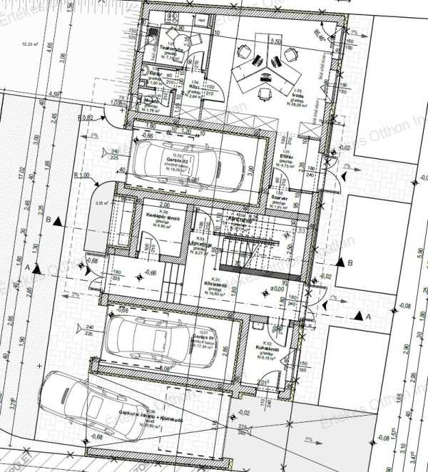
Nyíregyházán a Hatzel tér közelében, eladásra kínálunk egy 2.emeleti, új építésű, 68,8 nm-s lakást! Minőségi kivitelezés, bizonyított szakmai háttérrel! Főbb paraméterek: - Tégla falazat + homlokzati szigetelés - 4 lakásos, 3 szintes társasház: Fsz, 1 em., 2. em., garázs, autó beálló - 2 szoba+nappalis, Loggiás, teraszos - Klimatizált - Kondenzációs gázkazán, (hidegburkolat alatt padlófűtés, a szobákban radiátoros hőleadókkal) - Műanyag nyílászáró - A garázs külön megvásárolható 14,5 M Ft-ért - Jelenlegi készültségi szint: szerkezetkész, várható átadás: 2026 nyara 3 lakás még elérhető!: 1 em./2-s lakás:73 nm = 65.520.000 Ft erkélyes 2.em./1-s lakás:68 nm = 60.750.000 Ft 2.em./2-s lakás:69 nm = 61.920.000 Ft Teljes körű ügyintézés az első lépéstől a kulcsátadásig! - Hitelügyintézés - Megbízható ügyvéd - Energetikai tanúsítvány - Zökkenőmentes lebonyolítás
Lépjen velünk kapcsolatba!
Gajdos Brigitta
Értékes Otthon Ingatlan
A partner további hirdetései
Kapcsolatfelvételhez kattintson
A tétel adatlapján feltüntetett leírások a rendelkezésre álló információink alapján készültek. Az eszközök működőképességét, rejtett hibáit nem vizsgáltuk, azokról nincs tudomásunk. Kérjük, hogy licitálás előtt személyesen is tekintsék meg a megvásárolni kívánt tételeket, mert utólag nem tudunk reklamációt elfogadni. A szállítási és bontási költségek a vásárlót terhelik. A szállítást akkor lehet megkezdeni, ha az eladó az erre vonatkozó engedélyt megadta. A leütési ár nem tartalmazza az ÁFÁ-t és a vásárlói felárat.