2943 Bábolna
Ingatlan sorszáma: 4899
717 213 Ft / m2
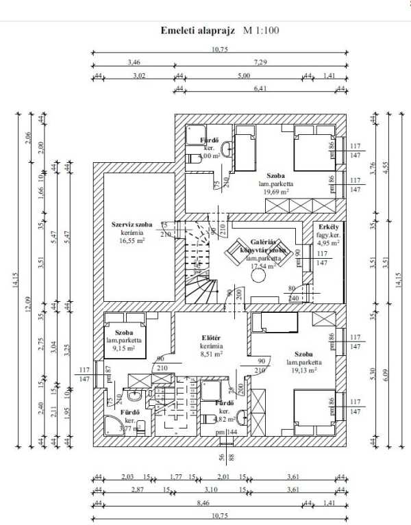
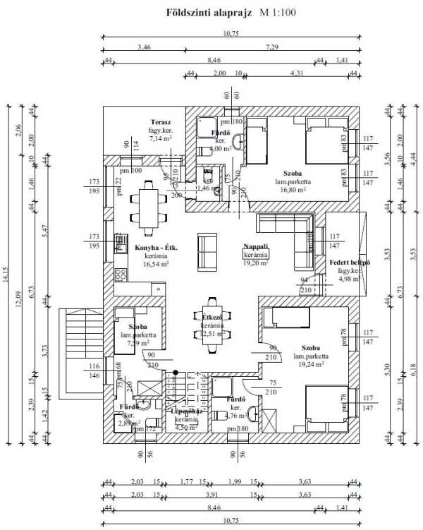
Komárom-Esztergom vármegye, Bábolna, eladó befejezésre váró vendégház KIZÁRÓLAG IRODÁNK KÍNÁLATÁBAN! MÁJUSI AKCIÓ, CSAK EBBEN A HÓNAPBAN -15 MFT ÁRENGEDMÉNNYEL! A meghirdetett ár tartalmazza a kedvezményt! Bábolna mind elhelyezkedése, mind pedig funkcionalitása miatt nagyon vonzó település! Az épület kiváló lokációban, egy családi házas övezetben található, pár utcányira a Bábolna Strand - és Termálfürdőtől. A 951 m2-es telken áll a jelenleg 244 m2-es épület (terv szerinti tetőtérbeépítés további 80 m2). Mellette pedig helyet kapott egy 62,5 m2-et garázs tárolóval, mely további hasznosításra alkalmas. A megálmodott négy szintes téglaépület az elmúlt évek során számos felújításon esett át, többek között a tulajdonos a teljes tető héjazatát cserepes lemeztetőre cserélte, a fa szerkezetek pedig nagy részében cserélve, részben felújítva lettek. Belső kőműves átalakítási munkálatok mellett a teljes fűtési rendszert lecserélték, melyet két nagyteljesítményű, energiatakarékos gázkazán működtet, hőleadók Xénia típusú alumínium radiátorok, melegvíztároló: puffertartájjal. A régi kémény pedig használható, a gázfűtés kiegészíthető vegyes tüzelésű kazánnal, ha igény van rá. A víz – és szennyvízrendszer cseréje is megtörtént. . A homlokzat szigetélést kapott. A ház ablakai új, többrétegű műanyag hő – és hangszigetelt, bejárati ajtó szintén. Ablakokra redőny és szúnyogháló is került. Elosztását tekintve szintenként 3-3 szobából áll (mindegyikhez fürdőszobával), közösségi terekből és 2 tetőtéri lakosztályból az alábbi tervezett részletezésben: Pince: (kb. 10 m2) ahol a gépészet kapott helyet, ami a ház fűtési központja, melegvíz tároló puffertartállyal illetve mosókonyhaként is szolgál. Földszint: Szoba1 (francia ágy, szimpla ágy): 16,8 m2 + 4 m2 (fürdőszoba) Ez a szoba a 90 cm-es ajtószélességek miatt akadálymentes! Szoba2 (francia ágy, szimpla ágy): 19,24 m2 + 4,76 m2 (fürdőszoba) Szoba3 (szimpla ágy): 7,59 m2 + 2,89 m2 (fürdőszoba) Nappali: 19,2 m2 Konyha-étkező: 16,54 m2 + étkező: 12,51 m2 + toalett: 1,46 m2 Lépcsőház: 4,5 m2 Terasz: 7,14 m2 Fedett belépő: 4,98 m2 Összesen: 121,61 m2 Bruttó: 10,75X14,15= 152,11 m2) Emelet: Szoba1 (francia ágy, szimpla ágy): 19,69 m2 + 4 m2 (fürdőszoba) Szoba2 (francia ágy, szimpla ágy): 19,13 m2 + 4,82 m2 (fürdőszoba) Szoba3 (francia ágy): 9,15 m2 + 3,77 m2 (fürdőszoba) Galériás könyvtárszoba: 17,54 m2 Szerviz szoba: 16,55 m2 Előtér: 8,51 m2 Erkély: 4,95 m2 Lépcsőház: 4,3 m2 Összesen: 112,41 m2 Bruttó: 10,75X14,15= 152,11 m2- terasz= 144,97 m2) Tetőtér – tetőtéri ablakokkal (még csak a tervek szerint): Szoba1 (francia ágy): 19,69 m2 + 4 m2 (fürdőszoba) Szoba2 (2 francia ágy, szimpla ágy): 47,13 m2 + 4,22 m2 (fürdőszoba) Közlekedő: 4,58 m2 Galériás könyvtárszoba légtere Összesen: 79,62 m2 A még hátra lévő építőipari munkálatok elvégzésére két generálkivitelezőtől van ajánlat, a befejezéséhez a legtöbb építőipari anyag már rendelkezésre áll. (Tetőszigetelő anyag, belső laminált padló burkolat, összes beltéri ajtó, fürdőszoba szaniterek, + ajándékként a könyvtár szobába egy könyvtárnyi könyv!) Ha pedig valaki folyamatos szálláshely szolgáltatásban gondolkozik, akkor emelt szintű munkásszállóként a folyamatos igények miatt teltházzal üzemeltethető. Megvásárolható az ingatlannal szembeni külön helyrajzi számon lévő 951m2 üres építési telek, ami akár parkolóként is hasznosítható! Ennek ára: 19,5 Millió Ft. Bábolna Komáromtól 15 km-re, Győrtől kb. 35 km-re, Budapesttől kb. 95 km-re fekszik. Lakossága kb. 3300 fő. Az M1-es autópálya 5 perc alatt elérhető, így Budapest és Bécs irányába is gyors a közlekedés. A település vasúti és autóbuszos kapcsolatokkal is rendelkezik. A központi, ám mégis elszigetelt, zöldövezeti, kertvárosi jellege miatt mindig is keresett lakóhelyként szerepelt, az elmúlt évek környező ipari innovációja miatt pedig fokozott albérleti és szállás igény túlkereslettel küzd. Az elkészült ingatlan hasznosíthatósága szempontjából alkalmi szálláshely tekintetében is hatalmas igényt elégítene ki, ugyanis évről évre egyre nő a helyi, már hagyománnyá váló, több napos rendezvények száma. (Évi 15-20 lovasverseny, Gazdanapok, Kukoricafesztivál, Sonkafesztivál, stb.) Országosan ismert a Bábolnai Nemzeti Ménesbirtokról és lovas rendezvényeiről. További kikapcsolódási lehetőséget nyújt a Kisbábolna Lovas Klub, illetve csodás Arborétummal, állatgyűjteménnyel is büszkélkedhet a település. Érdemes megemlíteni a néhány utcányira felépült Bábolna Strand- és Termálfürdőt, melyet 2020. június 30-án adták át. A városban boltok, éttermek, gyógyszertár és egészségügyi ellátás elérhető. Oktatási intézmények (óvoda, iskola) és sportlétesítmények is működnek. Ne maradjon le róla, hívjon akár hétvégén is! A jelen hirdetésben rögzített, az ingatlannal kapcsolatos adatok, információk, Megbízó tájékoztatása alapján kerültek meghatározásra. Irodánkban az alábbiakkal tudjuk segíteni a gyors és megbízható ügyintézést: -bankfüggetlen hitelügyintézés, CSOK Plusz -energetikai tanúsítvány -értékbecslés -ügyvédi szerződések, jogi tanácsadás -építész, tervezés, kivitelezés, felújítás, villanyszerelés
Lépjen velünk kapcsolatba!
Kömőcziné Mezei Henrietta
NewLife Győr
A partner további hirdetései
Kapcsolatfelvételhez kattintson
A tétel adatlapján feltüntetett leírások a rendelkezésre álló információink alapján készültek. Az eszközök működőképességét, rejtett hibáit nem vizsgáltuk, azokról nincs tudomásunk. Kérjük, hogy licitálás előtt személyesen is tekintsék meg a megvásárolni kívánt tételeket, mert utólag nem tudunk reklamációt elfogadni. A szállítási és bontási költségek a vásárlót terhelik. A szállítást akkor lehet megkezdeni, ha az eladó az erre vonatkozó engedélyt megadta. A leütési ár nem tartalmazza az ÁFÁ-t és a vásárlói felárat.