2100 Gödöllő
Ingatlan sorszáma: 485
205 769 Ft / m2
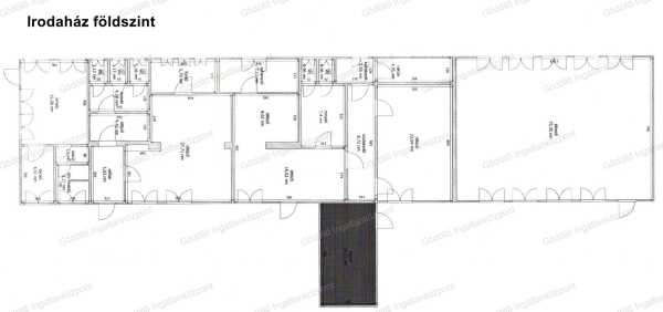
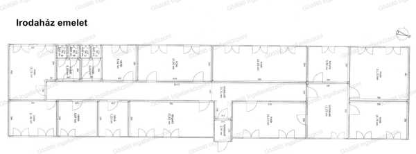
Ritka befektetési lehetőség! Gödöllő kiváló részén, kamionbehajtással rendelkező, körbejárható egyedi területen, 3883nm-es ipari üzem-csarnok eladó! Az ingatlan önálló helyrajzi számon nyilvántartott, 13.175nm-es, ipari kapukkal felszerelt, összközműves telken helyezkedik el. Övezeti besorolása Gip-04., beépíthetősége 40%. Az irodaház földszintjén öltöző, étkező, szociális helyiségek, raktárak, emeleten irodák - tárgyalók kaptak helyet, konyhával, mosdókkal. A gyártócsarnokban két daru üzemel, az emeleti irodákból kiválóan belátható az egész üzem. Kiépített kamerarendszerrel, led világításokkal felszerelt. Belmagasság az irodaépületnél 2,6m, a csarnok területen 5,8m, a gépészeti épületrész pedig 4,4m. Csarnokban hőlégbefúvás, az irodában gázcirkó fűtés működik, radiátoros hőleadással. A zárt udvaron belül több aszfaltozott parkolóhely került kialakításra. Remek részen, a város határában, az M0, M31 és M3-as autópályáktól 10 percre található! Irányár: 2.115.000 euró (külföldi cég, nettó ár) Hivatkozási szám: 2517961. Megtekinthető telefonos időpont egyeztetés alapján: Sápi Tamás +36 20 944-7025 sapitamas@godolloi.hu GÖDÖLLŐ INGATLANKÖZPONT - www.godolloi.hu: Gödöllő és környéke legnagyobb ingatlan választéka /Gödöllő, Szada, Veresegyház, Kistarcsa, Kerepes, Erdőkertes/ eladó-kiadó családi ház, telek, lakás! Ingatlan építés és felújítás!
Lépjen velünk kapcsolatba!
Sápi Tamás
Gödöllő Ingatlanközpont
A partner további hirdetései
Kapcsolatfelvételhez kattintson
A tétel adatlapján feltüntetett leírások a rendelkezésre álló információink alapján készültek. Az eszközök működőképességét, rejtett hibáit nem vizsgáltuk, azokról nincs tudomásunk. Kérjük, hogy licitálás előtt személyesen is tekintsék meg a megvásárolni kívánt tételeket, mert utólag nem tudunk reklamációt elfogadni. A szállítási és bontási költségek a vásárlót terhelik. A szállítást akkor lehet megkezdeni, ha az eladó az erre vonatkozó engedélyt megadta. A leütési ár nem tartalmazza az ÁFÁ-t és a vásárlói felárat.