2600 Vác Árpád út
Ingatlan sorszáma: 4818
868 132 Ft / m2
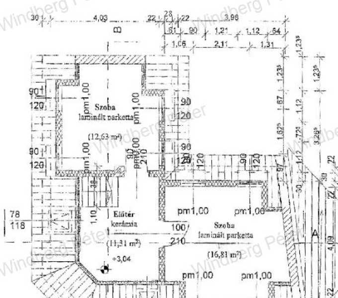
Vác egy forgalmas pontján, az Árpád út és a Vöröskereszt sor sarkán, kiváló láthatósággal és könnyű megközelíthetőséggel vállalkozás céljára ideális, nettó 91 m²-es épület eladó. A 2008-ban épült, önálló családi ház jelenleg is nyelviskolaként működik, így az ingatlan már bizonyítottan alkalmas üzleti tevékenységre. Elhelyezkedése révén tökéletes választás lehet irodának, rendelőnek, szolgáltató egységnek, üzletnek vagy bemutatóteremnek. Főbb jellemzők: Nettó alapterület: 91 m² Szerkezet: Porotherm 30-as tégla + 5 cm hőszigetelés Nyílászárók: műanyag, hőszigetelt ajtók és ablakok+ redőny Tető: Bramac betoncserép Fűtés: Nobo fűtőpanelek (WiFi-vezérléssel) „H” tarifás hűtő-fűtő klímaberendezések Rezsi: alacsony, gazdaságos üzemeltetés Praktikus, vállalkozásbarát elrendezés: Földszint: tágas előtér (üzlethelyiség vagy recepció kialakítására) külön iroda/szoba konyha fürdőszoba, WC kijárat egy kis belső kertbe Emelet: világos, tágas galéria két külön nyíló szoba minden helyiség rendkívül világos (4–4 ablak) Extra előny: Az ingatlan kialakítása lehetővé teszi, hogy a földszinten működjön a vállalkozás, az emelet pedig lakótérként szolgáljon, ami különösen előnyös az üzemeltető számára. Forgalmas elhelyezkedés + üzletileg bevált funkció + alacsony fenntartási költség Rritka lehetőség Vácon vállalkozások számára! Keressen elérhetőségeimen! Windberg Péter
Lépjen velünk kapcsolatba!
Windberg Péter
Windberg Péter
A partner további hirdetései
Kapcsolatfelvételhez kattintson
A tétel adatlapján feltüntetett leírások a rendelkezésre álló információink alapján készültek. Az eszközök működőképességét, rejtett hibáit nem vizsgáltuk, azokról nincs tudomásunk. Kérjük, hogy licitálás előtt személyesen is tekintsék meg a megvásárolni kívánt tételeket, mert utólag nem tudunk reklamációt elfogadni. A szállítási és bontási költségek a vásárlót terhelik. A szállítást akkor lehet megkezdeni, ha az eladó az erre vonatkozó engedélyt megadta. A leütési ár nem tartalmazza az ÁFÁ-t és a vásárlói felárat.