4400 Nyíregyháza Borbánya
Ingatlan sorszáma: 4810
935 294 Ft / m2
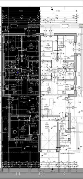
2026 januárban induló projektként kínálunk megvételre egy ikerházrészt Nyíregyháza egyik dinamikusan fejlődő lakóparkjában, Borbánya Nyíregyházához közel eső részén. Az ingatlan élhető, kis méretű telken, aszfaltozott utcában helyezkedik el, zárt lakóparkban, magánúttal, így nincs átmenő forgalom. Főbb jellemzők: - 67,24 m2 (br. 85 m2) hasznos alapterület+garázs15,4 m2 + terasz - 200 m2 telek terület - 2 szoba + amerikai konyha-nappalis kialakítás - 30-as porotherm tégla falazat - klíma és elektromos tűzhely előkészítéssel Modern, jól átgondolt alaprajzon látható, hogy komfortos méretű szobákkal rendelkezik a keleti tájolású ingatlan. A hőszivattyús padlófűtésre tervezett ház villany, víz és csatorna közművekkel ellátott. Ideális választás mindazok számára, akik új építésű, energiatakarékos otthont keresnek nyugodt, családbarát környezetben. További információkért és részletekért, megtekintésért keressen bizalommal! Az ingatlan az alaprajzi képen fehér alapszínnel van jelölve.
Lépjen velünk kapcsolatba!
Gila Viktor Iv.
Elements Group
A partner további hirdetései
Kapcsolatfelvételhez kattintson
A tétel adatlapján feltüntetett leírások a rendelkezésre álló információink alapján készültek. Az eszközök működőképességét, rejtett hibáit nem vizsgáltuk, azokról nincs tudomásunk. Kérjük, hogy licitálás előtt személyesen is tekintsék meg a megvásárolni kívánt tételeket, mert utólag nem tudunk reklamációt elfogadni. A szállítási és bontási költségek a vásárlót terhelik. A szállítást akkor lehet megkezdeni, ha az eladó az erre vonatkozó engedélyt megadta. A leütési ár nem tartalmazza az ÁFÁ-t és a vásárlói felárat.