6000 Kecskemét
Ingatlan sorszáma: 4799
1 043 846 Ft / m2
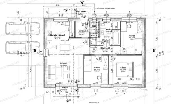
Kizárólag a FOCUS INGATLAN kínálatában! Eladásra kínálunk egy prémium műszaki tartalommal megépített, 91 nm lakóterű, új építésű családi házat Kecskemét legkedveltebb kertvárosi részén, Kadafalván. Az ingatlan egy nagy 1437 nm-es telken fekszik, közvetlenül egy hangulatos kis akácerdő szomszédságában, így a reggeli kávéját madárcsicsergés mellett, teljes privát szférában fogyaszthatja el. Műszaki paraméterek (Ami a biztonságot és az alacsony rezsit garantálja): - Falazat: Porotherm 30 X-therm tégla + 15 cm külső szigetelés. - Tető: Elegáns Terrán Zenit cserépfedés. - Szigetelés: 30 cm-es befújt födémszigetelés a maximális hőmegtartásért. - Nyílászárók: Veka 3 rétegű, kívül-belül antracit nyílászárók meleg peremmel, szúnyoghálóval és alumínium motoros redőnyökkel felszerelve. - Gépészet: Immergas gáz-cirkó kazán minden helyiségben padlófűtéssel, kiegészítve törölközőszárítós radiátorokkal. - Hűtés-fűtés: 4 db Gree Comfort Pro inverteres hűtő-fűtő klíma gondoskodik a tökéletes hőmérsékletről minden szobában. Belső kialakítás és kényelem A ház elosztása ideális családok számára: Világos, nagy szobák, melyek tágas életteret biztosítanak. Szülői háló saját gardróbbal, hogy minden ruhának meglegyen a helye. Prémium minőségű Grohe csaptelepek a vizesblokkokban. Kulcsrakész állapot: ide már csak a bútorait kell hoznia! Kert és parkolás A 1437 nm-es telek rengeteg lehetőséget rejt (medence, játszótér, konyhakert). A gépkocsik számára betonozott parkoló készült, amely igény szerint könnyedén lefedhető vagy akár zárt garázzsá is alakítható. Az ingatlan tehermentes és azonnal birtokba vehető! Ne maradjon le erről a kivételes lehetőségről, hiszen az ilyen kaliberű házak ritkán maradnak sokáig a piacon! Szeretné megtekinteni az ingatlant? Várom hívását időpontfoglaláshoz! Figyelem! A bútorozott képek a jobb szemléltetés érdekében mesterséges intelligenciával készültek. Az ingatlan teljesen új, még soha nem lakták, jelenleg üres állapotban várja első tulajdonosát.
Lépjen velünk kapcsolatba!
Géró Gábor
FOCUS INGATLAN
A partner további hirdetései
Kapcsolatfelvételhez kattintson
A tétel adatlapján feltüntetett leírások a rendelkezésre álló információink alapján készültek. Az eszközök működőképességét, rejtett hibáit nem vizsgáltuk, azokról nincs tudomásunk. Kérjük, hogy licitálás előtt személyesen is tekintsék meg a megvásárolni kívánt tételeket, mert utólag nem tudunk reklamációt elfogadni. A szállítási és bontási költségek a vásárlót terhelik. A szállítást akkor lehet megkezdeni, ha az eladó az erre vonatkozó engedélyt megadta. A leütési ár nem tartalmazza az ÁFÁ-t és a vásárlói felárat.