4552 Napkor
Ingatlan sorszáma: 4797
126 582 Ft / m2
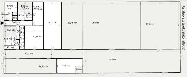
Stratégiai befektetés lehetőség Napkoron! Kihasználatlan hűtőház keresi új gazdáját. Érdekli a stabil ipari befektetés? **INGATLAN HELYSZÍNE, LOKÁCIÓ** A hűtőház a virágzó Napkor településén található, az 4552-es irányítószám alatt. Az objektum az ipari park területén helyezkedik el, kiváló logisztikai adottságokkal. Könnyen megközelíthető és szállítói szempontból is előnyös, mivel nincs behajtási súlykorlát. Ez a lokáció központi szerepet játszik a régió gyümölcsfeldolgozó iparában. **ÉPÜLET JELLEMZŐI KÍVÜLRŐL** Az épület egy jó állapotú, lapostetős ipari létesítmény. A teljes terület 2500 négyzetméteren terül el, amely magában foglalja az épület környezetét is. Az ipari kialakítás ideálissá teszi a különböző feldolgozott termékek tárolását és kezelését. A szerkezet fő eleme a nagy, 1100 négyzetméteres hűtőház, mely több egy ségre van szekcionálva jelenleg. **AZ INGATLAN JELLEMZŐI BELÜLRŐL** Belső térben több hűtőkara biztosítja a speciális igényekhez való alkalmazkodást. Az épület részei a gyümölcsfeldolgozók, kiegészítve irodákkal és szociális helyiségekkel. Az elrendezés rugalmasságot biztosít a különféle ipari műveletekhez. Az ingatlan teljes kihasználtsága ideális feltételeket teremt a hatékony működéshez. **KÖRNYÉK JELLEMZŐI** Napkor ipari parkja folyamatosan fejlődő gazdasági központ. Közeli és jól kiépített úthálózatának köszönhetően a szállítás gyors és egyszerű. A környék mezőgazdasági termékei friss alapanyagot biztosítanak a feldolgozáshoz. Az ipari parkban további beruházási lehetőségek is elérhetők, elősegítve a helyi gazdasági növekedést. Strategic Investment Opportunity in Napkor! Unused cold storage facility seeking a new owner. Are you interested in a stable industrial investment? **PROPERTY LOCATION** The cold storage is located in the thriving town of Napkor, under the postal code 4552. The facility is situated within the industrial park, offering excellent logistical attributes. Easily accessible and advantageous from a transportation perspective, as there are no weight restrictions for entry. This location plays a central role in the region's fruit processing industry. **EXTERIOR FEATURES OF THE BUILDING** The building is a well-maintained, flat-roofed industrial facility. The total area covers 2500 square meters, including the surrounding environment of the building. The industrial design makes it ideal for storing and handling various processed products. The main feature of the structure is the large, 1100 square meter cold storage area, currently sectioned into multiple units. **INTERIOR FEATURES OF THE PROPERTY** The interior includes several cooling units to accommodate special needs. The building comprises fruit processing areas, complemented by offices and social facilities. The layout offers flexibility for various industrial operations. The full utilization of the property creates ideal conditions for efficient operation. **NEIGHBORHOOD FEATURES** Napkor's industrial park is a continuously developing economic center. Thanks to its nearby and well-developed road network, transportation is quick and easy. The area's agricultural products provide fresh raw materials for processing. Further investment opportunities are available within the industrial park, promoting local economic growth. Ось перекладений текст українською мовою: Стратегічна інвестиційна можливість у Напкорі! Невикористане холодокомплект шукає нового власника. Цікавитеся стабільними промисловими інвестиціями? **РОЗТАШУВАННЯ НЕРУХОМОСТІ, ЛОКАЦІЯ** Холодокомплект розташований у процвітаючому селі Напкор, з поштовим індексом 4552. Об'єкт знаходиться на території промислового парку, з чудовими логістичними можливостями. Легко доступний і вигідний з точки зору транспорту, оскільки немає обмежень по вазі для в'їзду. Ця локація відіграє центральну роль у фруктопереробній промисловості регіону. **ЗОВНІШНІ ХАРАКТЕРИСТИКИ БУДІВЛІ** Будівля — це промисловий об'єкт з плоским дахом у доброму стані. Загальна площа становить 2500 квадратних метрів, що включає територію навколо будівлі. Промисловий дизайн ідеально підходить для зберігання і обробки різних перероблених продуктів. Основний елемент конструкції — великий 1100 квадратних метрів холодокомплект, який наразі розділений на декілька секцій. **ВНУТРІШНІ ХАРАКТЕРИСТИКИ НЕРУХОМОСТІ** Усередині кілька холодильних камер дозволяють адаптуватися до спеціальних потреб. Будівля містить фруктопереробні цехи, доповнені офісами та соціальними приміщеннями. Планування забезпечує гнучкість для різних промислових операцій. Повне використання площі нерухомості створює ідеальні умови для ефективної роботи. **ХАРАКТЕРИСТИКИ МІСЦЕВОСТІ** Промисловий парк Напкора є постійно розвиваючимся економічним центром. Завдяки близості та добре розвиненій дорожній мережі, транспортування є швидким та простим. Сільськогосподарські продукти місцевості забезпечують свіжі сировини для переробки. У промисловому парку також доступні додаткові інвестиційні можливості, сприяючи місцевому економічному зростанню.
Lépjen velünk kapcsolatba!
Hajduné Borbála
PORTABELLA Ingatlaniroda
A partner további hirdetései
Kapcsolatfelvételhez kattintson
A tétel adatlapján feltüntetett leírások a rendelkezésre álló információink alapján készültek. Az eszközök működőképességét, rejtett hibáit nem vizsgáltuk, azokról nincs tudomásunk. Kérjük, hogy licitálás előtt személyesen is tekintsék meg a megvásárolni kívánt tételeket, mert utólag nem tudunk reklamációt elfogadni. A szállítási és bontási költségek a vásárlót terhelik. A szállítást akkor lehet megkezdeni, ha az eladó az erre vonatkozó engedélyt megadta. A leütési ár nem tartalmazza az ÁFÁ-t és a vásárlói felárat.