4405 Nyíregyháza Borbánya
Ingatlan sorszáma: 4605
328 829 Ft / m2
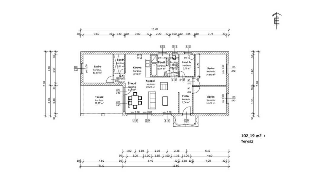
ÚJ ÉPÍTÉSŰ CSALÁDI HÁZ ÚJ LAKÓPARKBAN - KIVÁLÓ ÁR-ÉRTÉK ARÁNY! Új lakóparkban 2026 márciusában induló projektként kínálunk megvételre egy modern családi házat Nyíregyháza egyik dinamikusan fejlődő részén Borbánya és Kistelekiszőlő határán. Az ÖNÁLLÓ CSALÁDI HÁZ élhető méretű telken , aszfaltozott utcában helyezkedik el, az úttól 50 méterre visszahúzva,- így csökkentve a zaj (és por) szennyezést. Főbb jellemzők: - 102 m2 hasznos alapterület + 19 m2 fedett terasz - 940 m2 telek terület - 3 szoba + nappalis kialakítás - 30-as porotherm tégla falazat - Kontyolt nyeregtető, cserepes héjazat Modern ,jól átgondolt alaprajzon látható, hogy komfortos méretű szobákkal (mindhárom meghaladja a 12m2 -t) rendelkezik a déli tájolású ingatlan. A hőszivattyús padlófűtésre tervezett ház villany, víz és csatorna közművekkel ellátott. Buszmegálló 400 m-re található. Megvásárolható Szerkezetkész és Kulcskész állapotban is a következők szerint: - Szerkezetkész állapotban (felmenő falazat, nyeregtető héjazattal, közmű kiállások) 36,5 M Ft (lásd: referencia fotók) - Kulcskész állapotban 73,5 M Ft irányár (burkolatok, gépesítés, szaniterek, belső nyílászárók stb. függvényében) Ebben az állapotban természetesen 15 cm homlokzati szigetelés ,színezés, 3 rétegű üvegezéssel műanyag nyílászárók és 30 cm födém szigetelés biztosított. Ideális választás mindazok számára, akik új építésű, energiatakarékos otthont keresnek nyugodt, családbarát környezetben, rugalmas kivitelezési lehetőséggel. További információkért és részletekért,- akár a kivitelező referencia ingatlanjainak megtekintéséért-keressen bizalommal!
Lépjen velünk kapcsolatba!
Balogh István
Elements Group
A partner további hirdetései
Kapcsolatfelvételhez kattintson
A tétel adatlapján feltüntetett leírások a rendelkezésre álló információink alapján készültek. Az eszközök működőképességét, rejtett hibáit nem vizsgáltuk, azokról nincs tudomásunk. Kérjük, hogy licitálás előtt személyesen is tekintsék meg a megvásárolni kívánt tételeket, mert utólag nem tudunk reklamációt elfogadni. A szállítási és bontási költségek a vásárlót terhelik. A szállítást akkor lehet megkezdeni, ha az eladó az erre vonatkozó engedélyt megadta. A leütési ár nem tartalmazza az ÁFÁ-t és a vásárlói felárat.