2111 Szada
Ingatlan sorszáma: 445
378 788 Ft / m2
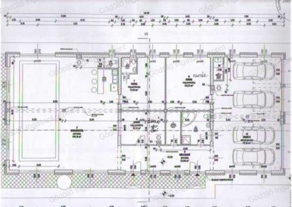
Szadán eladó 1200m2-es telken 330m2-es jó-átlagos állapotú családi ház. Téglaépítésű, dryvit szigetelt, nappali + 3 szobás, 2 fürdőszobás, cirkófűtéses, 4 beállásos garázsos, medencés ház. A nappaliban is található egy medence ami jelenleg le van fedve! A szobákban laminált padló burkolat, a többi helyiségben minőségi padlólapok, a nappaliban elektromos redőnyök kerültek beépítésre. A konyhabútor az ár részét képezi! Rugalmasan megtekinthető, viszonylag gyorsan birtokba vehető! Irányár: 125MFt! Hivatkozási szám:2517516. Megtekinthető telefonos időpont egyeztetés alapján: Sápi Tamás: +36 (20) 944-7025 sapitamas@godolloi.hu GÖDÖLLŐ INGATLANKÖZPONT - www.godolloi.hu: Gödöllő és környéke legnagyobb ingatlan választéka /Gödöllő, Szada, Veresegyház, Kistarcsa, Kerepes, Erdőkertes/ eladó-kiadó családi ház, telek, lakás! Ingatlan építés és felújítás!
Lépjen velünk kapcsolatba!
Sápi Tamás
Gödöllő Ingatlanközpont
A partner további hirdetései
Kapcsolatfelvételhez kattintson
A tétel adatlapján feltüntetett leírások a rendelkezésre álló információink alapján készültek. Az eszközök működőképességét, rejtett hibáit nem vizsgáltuk, azokról nincs tudomásunk. Kérjük, hogy licitálás előtt személyesen is tekintsék meg a megvásárolni kívánt tételeket, mert utólag nem tudunk reklamációt elfogadni. A szállítási és bontási költségek a vásárlót terhelik. A szállítást akkor lehet megkezdeni, ha az eladó az erre vonatkozó engedélyt megadta. A leütési ár nem tartalmazza az ÁFÁ-t és a vásárlói felárat.