6721 Szeged Újszeged
Ingatlan sorszáma: 4396
1 287 879 Ft / m2
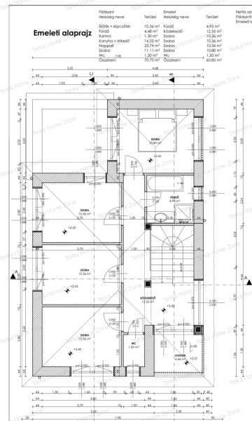
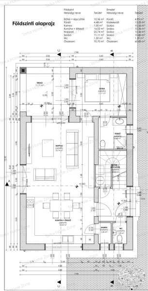
Eladó újépítésű, kétszintes családi ház Újszegeden – azonnal költözhető Eladó Újszeged kedvelt részén egy újépítésű, nettó 131,5 m²-es, kétszintes, 4 szoba + amerikai konyhás nappalis családi ház, kulcsrakész állapotban, azonnali birtokbaadással. Ingatlan jellemzői: Típus: családi ház Szobák száma: 4 hálószoba + amerikai konyhás nappali Nettó alapterület: 131,5 m² Szintek száma: 2 Állapot: újépítésű, kulcsrakész Azonnal birtokba vehető Helyiségek elosztása: Földszint: -amerikai konyhás nappali -hálószoba -zuhanyzós fürdőszoba -külön WC -spájz -gépészeti helyiség -terasz Emelet: -3 hálószoba -kádas fürdőszoba -külön WC -loggia Műszaki tartalom, felszereltség: -44 cm vastag okostégla falazat -3 rétegű, kívül színezett hőszigetelt nyílászárók -elektromos redőnyök -padlófűtés mindkét szinten -mennyezeti hűtés mindkét szinten -Mitsubishi hőszivattyús rendszer -kiépített kamera- és riasztórendszer -igényes, gépesített konyhabútor Külső jellemzők: -560 m²-es, kialakított kertkapcsolat -telepített automata öntözőrendszer -2 állásos garázs, elektromos kapuval Összegzés: Ez az ingatlan minden igényt kielégítő, modern műszaki tartalommal rendelkező otthon, ideális választás nagyobb családok számára, akik Újszeged frekventált környezetében keresnek minőségi, azonnal költözhető újépítésű házat. További információért vagy megtekintésért várom megkeresését!
Lépjen velünk kapcsolatba!
Bernát Terézia
Terka Home Zone
A partner további hirdetései
Kapcsolatfelvételhez kattintson
A tétel adatlapján feltüntetett leírások a rendelkezésre álló információink alapján készültek. Az eszközök működőképességét, rejtett hibáit nem vizsgáltuk, azokról nincs tudomásunk. Kérjük, hogy licitálás előtt személyesen is tekintsék meg a megvásárolni kívánt tételeket, mert utólag nem tudunk reklamációt elfogadni. A szállítási és bontási költségek a vásárlót terhelik. A szállítást akkor lehet megkezdeni, ha az eladó az erre vonatkozó engedélyt megadta. A leütési ár nem tartalmazza az ÁFÁ-t és a vásárlói felárat.