2013 Pomáz Messelia
Ingatlan sorszáma: 4311
1 068 696 Ft / m2
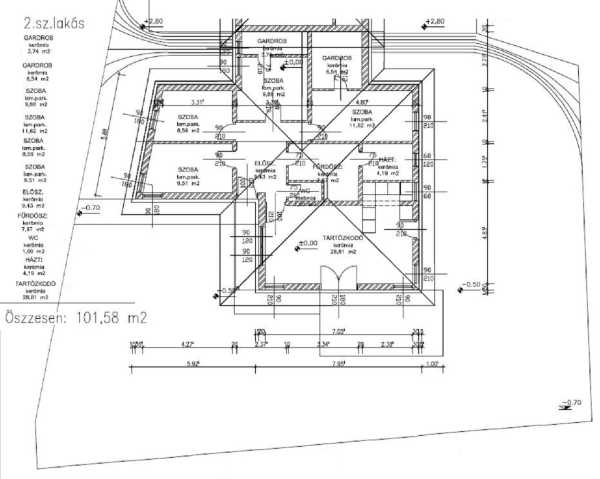
Pomázon a Meselia déli oldalában, csendes környezetben 340 nm-es saját, kizárólagos használatú kerttel rendelkező, egy szintes, nappali + 4 hálószobás ikerház-fél eladó. Az építéssel kapcsolatos paraméterek: - Tervezett átadás: szerződés kötéstől számított egy éven belül - hőszivattyús fűtés, padlófűtéssel, radiátorokkal - magas minőségű hőszigetelés, ZÖLD hitelnek megfelelő energetikai besorolás - több rétegű, műanyag nyílászárók - választható belső burkolatok, szaniterek - riasztó rendszer előkészítés - 30 nm-es, az amerikai konyhás nappalihoz kapcsolódó terasz - durva tereprendezés - kulcsrakész átadás Finanszírozási lehetőség: - Zöld hitel kompatibilitás - CSOK (10+15M) hitel, illeték mentesség, Áfa visszatérítés igényelhető. - Az alaprajz igény szerint még módosítható. A beruházó a környék elismert építési vállalkozója, rengeteg referenciamunkával rendelkezik.
Lépjen velünk kapcsolatba!
Kiss Krisztina
Körültekintő Ingatlan - hirdetünk ön helyett!
A partner további hirdetései
Kapcsolatfelvételhez kattintson
A tétel adatlapján feltüntetett leírások a rendelkezésre álló információink alapján készültek. Az eszközök működőképességét, rejtett hibáit nem vizsgáltuk, azokról nincs tudomásunk. Kérjük, hogy licitálás előtt személyesen is tekintsék meg a megvásárolni kívánt tételeket, mert utólag nem tudunk reklamációt elfogadni. A szállítási és bontási költségek a vásárlót terhelik. A szállítást akkor lehet megkezdeni, ha az eladó az erre vonatkozó engedélyt megadta. A leütési ár nem tartalmazza az ÁFÁ-t és a vásárlói felárat.