4400 Nyíregyháza Belváros
Ingatlan sorszáma: 4252
953 778 Ft / m2
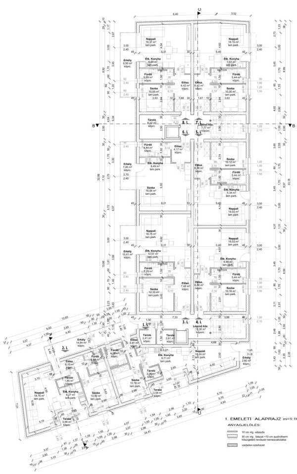
Nyíregyháza Belvárosában eladásra kínálok 2027. nyarán 100 %-os készültségben átadásra kerülő, liftes, 3 szintes, 20 lakásos, zárt belső udvaros, garázs- il. kocsibeállóval rendelkező, új építésű lakásokat! - tégla építésű, 15 cm-s szigetelés, 3 rétegű műanyag nyílászárók, kondenzációs kazán, padófűtés, klíma A belső nyílászárók, burkolatok, szanitereket a leendő tulajdonos választhatja. - 1.emelet - 45 m2-en : amerikai konyhás nappali, hálószoba,fürdőszoba, tároló, előszoba, - lift vásárolható garázs 8,5 - 9,5 M Ft, elektromos garázskapu kocsibeálló 2,5 M Ft Belváros adta előnyök, iskolák, üzletek, szórakozási lehetőségek. Bővebb információért, teljes körű, ingyenes, bankfüggetlen ügyintézéssel várom hívását!
Lépjen velünk kapcsolatba!
Zborayné Barkaszi Anikó
Elements Group
A partner további hirdetései
Kapcsolatfelvételhez kattintson
A tétel adatlapján feltüntetett leírások a rendelkezésre álló információink alapján készültek. Az eszközök működőképességét, rejtett hibáit nem vizsgáltuk, azokról nincs tudomásunk. Kérjük, hogy licitálás előtt személyesen is tekintsék meg a megvásárolni kívánt tételeket, mert utólag nem tudunk reklamációt elfogadni. A szállítási és bontási költségek a vásárlót terhelik. A szállítást akkor lehet megkezdeni, ha az eladó az erre vonatkozó engedélyt megadta. A leütési ár nem tartalmazza az ÁFÁ-t és a vásárlói felárat.