4441 Szorgalmatos
Ingatlan sorszáma: 4201
294 776 Ft / m2
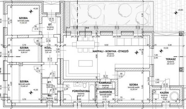
Szorgalmatos – egy igazi ékszerdoboz település, ahol most különleges lehetőség vár! Eladó egy átépítés alatt álló, teljes kivitelezési engedéllyel rendelkező családi ház, amelyet most még saját ízlésed szerint fejezhetsz be! A projekt jelenleg 55%-os készültségen áll, a nagy, költséges szerkezetépítési munkák már elkészültek: ✔ A falak állnak ✔ A tető fent van, prémium minőségben ✔ A nyílászárók beépítve ✔ Az elektromos hálózat behúzva ✔ 3×20A áram, H-tarifa előkészítve A tervezett nettó 134 m²-es otthon tökéletes elrendezést kínál: 4 külön szoba + egy amerikai konyhás, PANORÁMÁS, 41 m²-es nappali, ami minden családi tér álma! A ház egy 1220 m²-es, rendezett portán helyezkedik el, aszfaltozott utcában, csendes, biztonságos környezetben. Gázcsonk, a telken. A település kiváló választás családoknak is: a helyi iskola kifejezetten jó hírű, a környék barátságos és nyugodt. Ha szeretnél egy szuper helyen új otthont teremteni, úgy hogy a legtöbb belső megoldást TE határozod meg, akkor ez a lehetőség Neked szól! Hívj és megbeszéljük a részleteket. Akár befektetésnek, de saját részre talán még jobb. Hívj, és mutatom.
Lépjen velünk kapcsolatba!
Legány András Etikus Ingatlanos
Elements Group
A partner további hirdetései
Kapcsolatfelvételhez kattintson
A tétel adatlapján feltüntetett leírások a rendelkezésre álló információink alapján készültek. Az eszközök működőképességét, rejtett hibáit nem vizsgáltuk, azokról nincs tudomásunk. Kérjük, hogy licitálás előtt személyesen is tekintsék meg a megvásárolni kívánt tételeket, mert utólag nem tudunk reklamációt elfogadni. A szállítási és bontási költségek a vásárlót terhelik. A szállítást akkor lehet megkezdeni, ha az eladó az erre vonatkozó engedélyt megadta. A leütési ár nem tartalmazza az ÁFÁ-t és a vásárlói felárat.