1188 Budapest, XVIII. kerület
Ingatlan sorszáma: 4145
1 084 325 Ft / m2
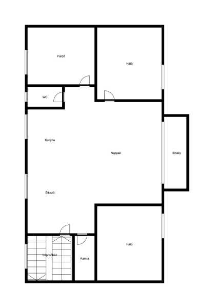
Eladó lakás; 83 m²; 89,9 M Ft; Budapest XVIII. kerület, Újpéteritelep Eladó egy 83 m²-es, 1+2 félszobás, tetőtéri lakás, saját kertrésszel, Budapest XVIII. kerületének csendes, kertvárosi részén, egy 3 lakásos társasházban. Főbb jellemzők: Alapterület: 83 m² Elrendezés: amerikai konyhás nappali + 2 félszoba Erkély: 4 m², délnyugati tájolású Saját udvari gépkocsibeálló Kert használat Privát, zárt lépcsőház + extra tároló + padlás Belső kialakítás: Világos nappali amerikai konyhával és étkezősarokkal Teljesen gépesített konyha konyhaszigettel és bőséges tárolóhellyel Két WC: különálló + fürdőszobában Fürdőszoba: felújított, zuhanyzóval és káddal Klímával felszerelt nappali Műszaki állapot: Korszerű kondenzációs gázkazán (radiátoros fűtés) Klíma a nappaliban (fűtésre és hűtésre) Jó állapotban lévő nyílászárók Délnyugati fekvés, napfényes helyiségek Környezet és infrastruktúra: Csendes, családbarát környék, barátságos lakóközösség A társasházban 2 lakás és 1 üzlethelyiség található Közelben: bevásárlási lehetőségek, óvoda, iskola, orvosi rendelő Kiváló közlekedés: Kőbánya-Kispest 20 perc, repülőtér és belváros könnyen elérhető
Lépjen velünk kapcsolatba!
Juhász László
Otthonok Specialistája
A partner további hirdetései
Kapcsolatfelvételhez kattintson
A tétel adatlapján feltüntetett leírások a rendelkezésre álló információink alapján készültek. Az eszközök működőképességét, rejtett hibáit nem vizsgáltuk, azokról nincs tudomásunk. Kérjük, hogy licitálás előtt személyesen is tekintsék meg a megvásárolni kívánt tételeket, mert utólag nem tudunk reklamációt elfogadni. A szállítási és bontási költségek a vásárlót terhelik. A szállítást akkor lehet megkezdeni, ha az eladó az erre vonatkozó engedélyt megadta. A leütési ár nem tartalmazza az ÁFÁ-t és a vásárlói felárat.