4400 Nyíregyháza Belváros
Ingatlan sorszáma: 3822
1 074 314 Ft / m2
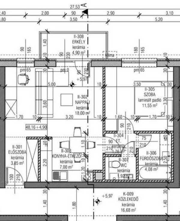
Nyíregyháza belvárosában , prémium minőségű, új építésű lakások! A társasházban 10 lakás, 7 garázs, 5 kocsibeálló és egy üzlethelyiség került kialakításra . 2 emeletes A lakásokban amerikai konyhás nappali, hálószoba, fürdőszoba, WC, előtér, erkély található. lakás : 46,39 m2, erkéy: 4,9 m2 - 1.emelet - tégla építésű, szigetelt - antracit korcolt fémlemezű nyeregtető - műanyag nyílászárók - kondenzációs kombi kazánnal, radiátoros illetve padlófűtés - laminált padló illetve járólap - földszinti közös tároló - A lakáshoz önálló garázs 12,5 M Ft-ért, vagy udvari beálló 3,5 M Ft-ért vásárolható. Várható átadás: 2026. év vége Az ingatlan elhelyezkedése, energetikai mutatói biztosítják nem csak a kényelmet, hanem az értékállóságot is! Bővebb információkért, teljes körű, ingyenes bankfüggetlen ügyintézéssel várom hívását!
Lépjen velünk kapcsolatba!
Zborayné Barkaszi Anikó
Elements Group
A partner további hirdetései
Kapcsolatfelvételhez kattintson
A tétel adatlapján feltüntetett leírások a rendelkezésre álló információink alapján készültek. Az eszközök működőképességét, rejtett hibáit nem vizsgáltuk, azokról nincs tudomásunk. Kérjük, hogy licitálás előtt személyesen is tekintsék meg a megvásárolni kívánt tételeket, mert utólag nem tudunk reklamációt elfogadni. A szállítási és bontási költségek a vásárlót terhelik. A szállítást akkor lehet megkezdeni, ha az eladó az erre vonatkozó engedélyt megadta. A leütési ár nem tartalmazza az ÁFÁ-t és a vásárlói felárat.