4400 Nyíregyháza Malomkert
Ingatlan sorszáma: 3795
780 000 Ft / m2
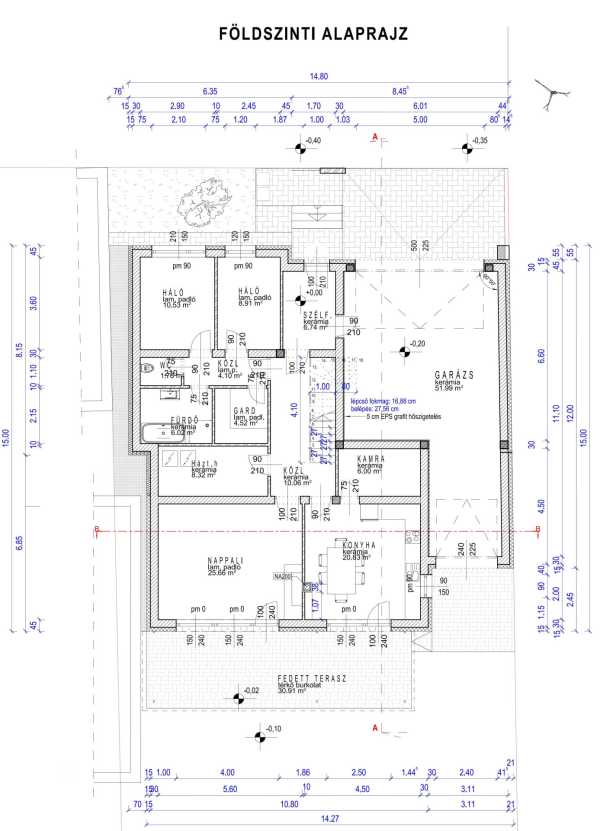
2023-ban épült, szintes, önálló családi ház Malomkert szélén! Saját részre precízen tervezett és gondosan, prémium minőségben kivitelezett. Nyugati tájolás, világos, napfényes. Földszinten nappali,2 hálószoba, konyha- étkező, kamra,mosóhelyiség, fürdőszoba, WC, előtér, tágas közlekedő lépcsőfeljáróval. Emeleten 2 hálószoba, gardrób, fürdőszoba,közlekedő, beépített, zárt kis terasz - 30-as tégla falazat, 15 cm-s grafitos szigetelés - 3 rétegű műanyag nyílászárók elektromos és szigetelt alu redőnyök, szúnyogháló - foncsorozott, hővédő üvegezés a nappaliban és a konyhában - minőségi beltéri ajtók - exkluzív kivitelezésű lépcső, alatta praktikus tároló - konyhasziget mosogatóval, borhűtővel - nappaliban kandalló kémény - hatalmas, 53 m2-s, 3 állásos garázs lakás -és kertkapcsolattal, műgyanta borítás, vízelvezető Hörman automata szekcionált garázskapu - 30 m2-s fedett terasz konyha- és nappali kapcsolattal - parkosított udvar, öntözőrendszer, fúrott kút - 30m2-s fedett " sütögető" konyhapulttal , kinti mosdó - minden szobában hűtő-fűtő klíma - infra - szőnyeg padlófűtés Nullás energiafelhasználás - 10 KW napelemrendszer- H tarifa 380 V Generátor csatlakozási lehetőség OKOSOTTHON RENDSZER, távolból vezérelhető: - kamera - riasztó - redőny - fűtés, klíma - garázsajtó Debreceni - és a Kállói útról is könnyen elérhető. Ha olyan otthont keres, ahol nem kell kompromisszumot kötni, mert a kényelem, biztonság, szinte nullás energiafelhasználás már adott, ne keressen tovább! Teljes körű, bankfüggetlen ügyintézéssel várom hívását!
Lépjen velünk kapcsolatba!
Zborayné Barkaszi Anikó
Elements Group
A partner további hirdetései
Kapcsolatfelvételhez kattintson
A tétel adatlapján feltüntetett leírások a rendelkezésre álló információink alapján készültek. Az eszközök működőképességét, rejtett hibáit nem vizsgáltuk, azokról nincs tudomásunk. Kérjük, hogy licitálás előtt személyesen is tekintsék meg a megvásárolni kívánt tételeket, mert utólag nem tudunk reklamációt elfogadni. A szállítási és bontási költségek a vásárlót terhelik. A szállítást akkor lehet megkezdeni, ha az eladó az erre vonatkozó engedélyt megadta. A leütési ár nem tartalmazza az ÁFÁ-t és a vásárlói felárat.