4551 Nyíregyháza Oros
Ingatlan sorszáma: 3460
760 000 Ft / m2
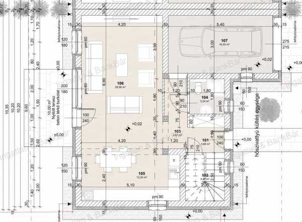
Nyíregyháza Oros városrészében eladó egy lenyűgöző ikerház, amely ideális választás lehet családok számára. Gondosan, igényesen kialakított lakópark 150 nm-es otthona igazán prémium kivitelben. Az ingatlan 2025-26-ban épül, így garantáltan l a legújabb technológiák és anyagok biztosítják a maximális kényelmet. A ház alapterülete 150 négyzetméter, míg a telek mérete 800 négyzetméter, így bőséges helyet kínál a kikapcsolódásra és a szabadidős tevékenységekre. A fűtés hőszivattyú- rendszerrel van megoldva, amely egyenletes hőmérsékletet biztosít az egész házban. A másodlagos fűtés klímás hűtés-fűtés formájában érkezik, így az év bármely szakában kellemes klímát teremthet otthonában. Az ikerház összesen 5 különálló szobával rendelkezik, 1 a földszinten (nappali), 4 az emeleten helyezkedik el. A további helyiségek listáját és azoknak nagyságát- mind a földszintit, mind az emeletit- a fotók között találja meg, ahol az ingatlan alaprajza is megtalálható. Az udvari kilátás nyugtató panorámát nyújt, ideális helyszín a pihenésre. A parkolásra garázsban van lehetőség, ami biztonságos megoldást kínál járművei számára. Az ingatlan bútorozatlan, lehetőséget adva arra, hogy saját ízlésének megfelelően alakítsa ki otthonát. Az energetikai tanúsítvány A++ besorolása pedig a kiváló energiahatékonyságot jelzi, ami hosszú távon is kedvező rezsiköltségeket eredményez. Ne hagyja ki ezt a remek lehetőséget, és váljon ennek a modern ikerháznak a boldog tulajdonosává, amely mindent kínál, amire csak szüksége lehet. Az irányár 104 900 000 Ft. Teljesen az igényeidhez igazítható, valamint átfogó pénzügyi szolgáltatásunkat is igénybe veheted, amely során: ● Az összes Magyarországi bank ajánlatát összehasonlítjuk, ● Segítünk megtalálni a számodra legmegfelelőbb banki konstrukciót
Lépjen velünk kapcsolatba!
Balla Anett
IngatlanBár
A partner további hirdetései
Kapcsolatfelvételhez kattintson
A tétel adatlapján feltüntetett leírások a rendelkezésre álló információink alapján készültek. Az eszközök működőképességét, rejtett hibáit nem vizsgáltuk, azokról nincs tudomásunk. Kérjük, hogy licitálás előtt személyesen is tekintsék meg a megvásárolni kívánt tételeket, mert utólag nem tudunk reklamációt elfogadni. A szállítási és bontási költségek a vásárlót terhelik. A szállítást akkor lehet megkezdeni, ha az eladó az erre vonatkozó engedélyt megadta. A leütési ár nem tartalmazza az ÁFÁ-t és a vásárlói felárat.