2337 Délegyháza Kossuth Lajos
Ingatlan sorszáma: 3136
471 667 Ft / m2
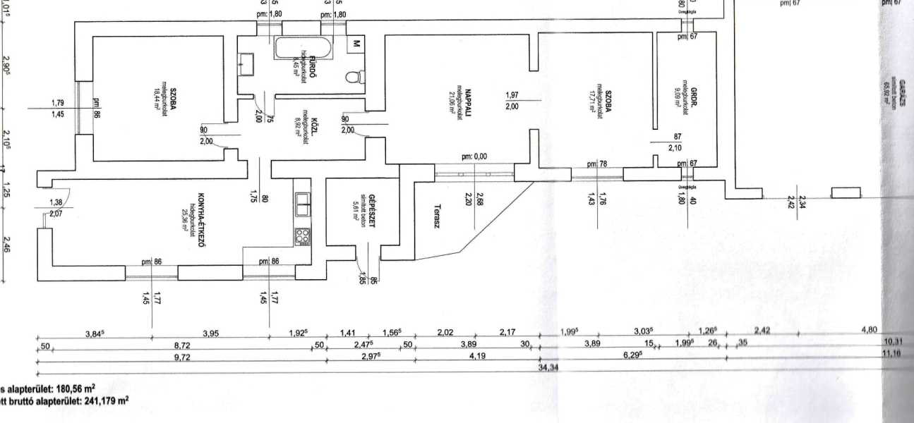
Budapesttől mindössze 35 percre, Délegyháza frekventált, mégis csendes környezetében kínálunk megvételre egy 857 m²-es telken fekvő, 180 m² összterületű, egyszintes, modern családi ingatlant. Főbb jellemzők és elrendezés: Az ingatlan 114,5 m²-es lakótere kiváló energetikai állapotú és optimális térkihasználású. A belső terek az alábbiak szerint tagolódnak: Három különnyíló, világos lakószoba. Tágas, étkezős konyha teljes körű gépesítéssel. Exkluzív fürdőszoba és külön gardróbhelyiség. Pihenésre alkalmas, nagy méretű terasz. Műszaki tartalom és innováció: Az épület fenntarthatósági és biztonsági szempontból is kiemelkedő: Gépészet: Viessmann gázcirkó rendszer, napkollektoros rásegítés, vízlágyító berendezés és 4 db inverteres hűtő-fűtő klíma. Szigetelés: 10 cm-es homlokzati és tetőszigetelés, thermo nyílászárók. Biztonság: Több ponton záródó biztonsági ajtó, távfelügyeleti riasztó- és kamerarendszer. Extrák: Saját wellness részleg (jakuzzi, szauna, padlófűtés), fúrt kút és távirányítós kapurendszer. Garázs és parkolás: A telken egy 65 m²-es, fűtött, háromállásos garázs található, amely szerelőaknával, elektromos kapukkal és elektromos autótöltő csatlakozással is rendelkezik. Ha a pasztel szineket kedveli, készítettünk pár terv fotót a házról. Nézze meg! Lokáció és infrastruktúra: Az ingatlan közvetlen környezetében minden alapvető intézmény (oktatási intézmények, posta, orvosi rendelő) és bevásárlási lehetőség sétatávolságra elérhető. A rendezett utcakép és a kiváló szomszédság garantálja a hosszú távú értékállóságot. Értékesítési feltételek! Felhívjuk a tisztelt érdeklődők figyelmét, hogy az ingatlan kizárólag készpénzes konstrukcióban (hitelmentesen) vásárolható meg. Amennyiben az ingatlan felkeltette érdeklődését, várom megtisztelő hívását a megadott elérhetőségeken.
Lépjen velünk kapcsolatba!
Micsik Andrea
PORTABELLA Ingatlaniroda
A partner további hirdetései
Kapcsolatfelvételhez kattintson
A tétel adatlapján feltüntetett leírások a rendelkezésre álló információink alapján készültek. Az eszközök működőképességét, rejtett hibáit nem vizsgáltuk, azokról nincs tudomásunk. Kérjük, hogy licitálás előtt személyesen is tekintsék meg a megvásárolni kívánt tételeket, mert utólag nem tudunk reklamációt elfogadni. A szállítási és bontási költségek a vásárlót terhelik. A szállítást akkor lehet megkezdeni, ha az eladó az erre vonatkozó engedélyt megadta. A leütési ár nem tartalmazza az ÁFÁ-t és a vásárlói felárat.