9086 Töltéstava
Ingatlan sorszáma: 3028
850 000 Ft / m2
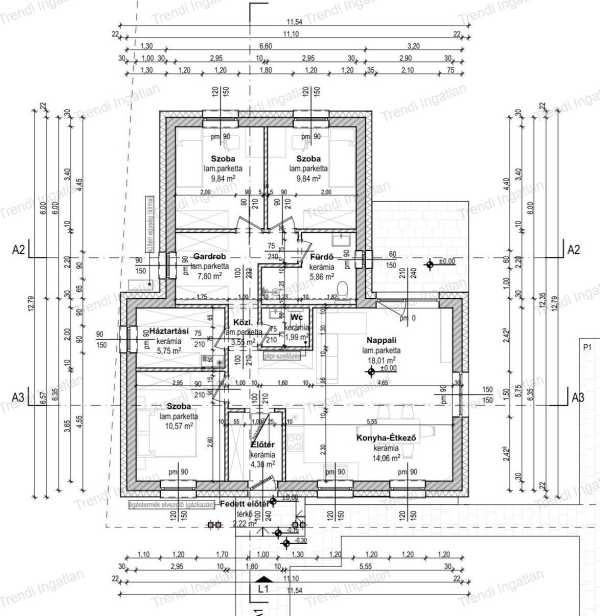
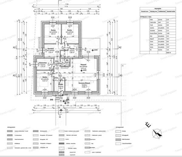
Töltéstava csendes utcájában, a Pannonhalmi Főapátságra néző 93,87 nm-es, nappali + 3 szobás ikerház 750 nm-es telekrészen eladó. A két ház egymás mellett, 1500 nm-es telken épül, nincs közös fal. A remek elosztású házban amerikai konyhás nappali, 3 szoba, fürdőszoba, háztartási helyiség, külön WC, előtér, közlekedő található. A ház 30-as falazóelemből, 15 cm-es homlokzati szigeteléssel, 3 rétegű műanyag, hőszigetelt üvegezésű nyílászárókkal kerül kivitelezésre. Az ingatlan fűtését kondenzációs kazán biztosítja, minden helyiségben padlófűtéssel. A nappaliba hűtő-fűtő klíma kerül felszerelésre. Felár ellenében hőszivattyús fűtés, kerti csap, riasztó előkészítés, klíma- és redőnyelőkészítés, térkövezés stb. kérhető. A ház belső elrendezése a készültségi fokhoz mérten még változtatható. Fűtéskész átadás várható ideje: 2026 ősz Az ingatlan fűtéskész ára: 79.900.000 Ft. Kulcsrakész befejezés kérhető. Kulcsrakész ár: 87.900.000 Ft. Az ár tartalmazza a telek árát is. Bővebb információkért forduljon hozzám bizalommal. Hétköznap és hétvégén is várom hívását! Díjmentes, bankfüggetlen hitelügyintézéssel állunk rendelkezésére.
Lépjen velünk kapcsolatba!
Neizer Éva
Trendi Ingatlan
A partner további hirdetései
Kapcsolatfelvételhez kattintson
A tétel adatlapján feltüntetett leírások a rendelkezésre álló információink alapján készültek. Az eszközök működőképességét, rejtett hibáit nem vizsgáltuk, azokról nincs tudomásunk. Kérjük, hogy licitálás előtt személyesen is tekintsék meg a megvásárolni kívánt tételeket, mert utólag nem tudunk reklamációt elfogadni. A szállítási és bontási költségek a vásárlót terhelik. A szállítást akkor lehet megkezdeni, ha az eladó az erre vonatkozó engedélyt megadta. A leütési ár nem tartalmazza az ÁFÁ-t és a vásárlói felárat.