2040 Budaörs
Ingatlan sorszáma: 271
843 717 Ft / m2
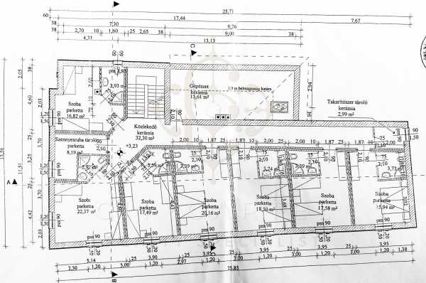
C I T Y C A R T E L INTERNATIONAL LUXURY REAL ESTATE AGENCY bemutatja: Budaörs közkedvelt, központi, jól megközelíthető részén kínálunk eladásra egy rendkívül barátságos, kellemes, jó állapotú, részben bútorozott, nagy teraszos, kertes, 14 kétágyas, légkondicionált, zuhanyzós-fűrdőszobás szobával rendelkező hotelt. A szobákban TV, telefon és minibár is biztosítja a vendégek maximális kényelmét. A földszinten recepció, és egy 170 nm-es kávéház, konyha (melegkonyhás engedéllyel) tárolóhelyiségek, mellékhelyiségek helyezkednek el. A kávézóban wireless Internet hozzáférési lehetőség található. A kényelmes szobák az első emeleten és a top szinten találhatók. Az első szinten található még egy 15 fős külön tárgyalóterem, valamint a gépház, amelyben a központi légkondicionáló berendezés és a 2 db Buderus gázkazán került elhelyezésre. A gépkocsival érkező szállóvendégek a ház alagsorában kialakított mélygarázsban parkolhatnak. A pince szinten 13 gépkocsi tárolására alkalmas garázs van, de az udvaron és közvetlenül a ház előtt is elég sok autó elfér. Telek területe: 574 nm Felépítmény összterülete: 947 nm Irányár 799 M Ft + áfa Kérem jelentkezzen az alábbi elérhetőségeken. Hívását szeretettel fogadjuk. ÜDVÖZLETTEL: DR VINCELLÉR ZSUZSA ÜGYVEZETŐ, CEO, LUXURY SPECIALIST +3630-815-2525 V.ZSUZSA@CITYCARTEL.HU CITY CARTEL BUDA KFT. CITY CARTEL FRANCHISE HUNGARY KFT. 1118 BUDAPEST, HEGYALJA ÚT 54. 1026 BUDAPEST, SZILÁGYI ERZSÉBET FASOR 121. BUDAGYÖNGYE BEVÁSÁRLÓKÖZPONT
Lépjen velünk kapcsolatba!
Dr. Vincellér Zsuzsa
CITY CARTEL BUDAPEST ÉS AGGLOMERÁCIÓ
A partner további hirdetései
Kapcsolatfelvételhez kattintson
A tétel adatlapján feltüntetett leírások a rendelkezésre álló információink alapján készültek. Az eszközök működőképességét, rejtett hibáit nem vizsgáltuk, azokról nincs tudomásunk. Kérjük, hogy licitálás előtt személyesen is tekintsék meg a megvásárolni kívánt tételeket, mert utólag nem tudunk reklamációt elfogadni. A szállítási és bontási költségek a vásárlót terhelik. A szállítást akkor lehet megkezdeni, ha az eladó az erre vonatkozó engedélyt megadta. A leütési ár nem tartalmazza az ÁFÁ-t és a vásárlói felárat.