9231 Máriakálnok Aranyossziget
Ingatlan sorszáma: 2557
622 804 Ft / m2
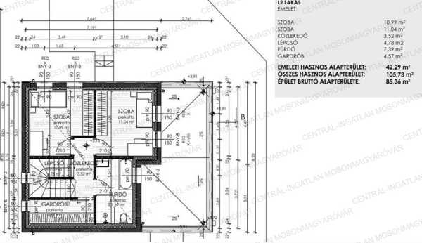
A CENTRÁL-INGATLAN kínálatában található egyedi, különleges ajánlatot látja! MOST 2.500.000.-Ft ÁRKEDVEZMÉNNYEL VÁSÁROLHATÓ MEG! Ez az új építésű családi ház a környék legkedvezőbb vételáron lévő ingatlanja! 3%-os Otthon Start Program, CSOK PLUSZ, babaváró igényelhető akár 3gyerekre is (106m2-es lakótér). -Mosonmagyaróvár határában, a Mosoni-Duna ölelésében lévő Aranyossziget Villaparkban (Máriakálnok) kínáljuk ezt a készülő családi házat! -A családi ház feltüntetett ára fűtéskész készültségi szintre vonatkozik. Lekötéstől függően akár már 2026. nyár végére átvehető. Kulcsrakészen is megrendelhető! Érdemes ezt megnézni mert kulcsrakészen, ennyiért nincs ilyen családi ház a környék ingatlanpiacán. A átadás a lekötés időpontjától függően változhat. -A saroktelekre két önálló családi ház épül. Teljesen külön bejárattal, telekrésszel, nincs átjárás! -Az L2 jelölésű családi házhoz 273m2 telekterület tartozik, itt kialakítható kocsibeálló, füvesített-parkosított kert, fedett vagy nyitott terasz igény szerinti méretben. -A családi ház két teljes szinttel készül, 105.73m2 lakóterülettel, terasz igény szerinti méretben készülhet (plusz költség). A belső kialakítás kiváló. A nappali-konyha-étkező tágas (28m2), a földszinten készül 1 hálószoba, fürdőszoba wc-vel és egy tágas háztartási helyiség. Az emeleten 2 hálószoba, fürdőszoba wc-vel és gardrób helyiség lesz kialakítva. A felsőszinten akár egy tetőterasz is kialakítható. -A műszaki paraméterek magasak, kizárólag I. osztályú anyagok felhasználásával épül a családi ház, tapasztalt, 25 éve működő kivitelező munkájával. -Fűtésre és meleg víz készítésre HŐSZIVATTYÚ lesz beépítve. A fűtésrendszer padlófűtéssel készül. 1 db klíma kiállást-előkészítést az ár tartalmaz. A fürdőkben elektromos, törölközőszárítós radiátorok is lesznek a padlófűtés mellett. -A könnyűszerkezetes technológiával épülő családi ház ÉMI engedéllyel rendelkező szabadalmaztatott rendszerrel készül. A külső falakra 12cm polisztirol hőszigetelés kerül, a födém 26cm táblás gyapot szigetelést kap, az aljzatba 15cm polisztirol hőszigetelés kerül. A fémvázszerkezettel épülő ház 15cm-es kőzetgyapot kitöltéssel, hőtükrös fóliával és dupla gipszkarton burkolással. Erre kerül még a 12cm polisztirol szigetelés. Így a legjobb hőszigetelésű falakat kapjuk. Referenciák a környéken bőven megtekinthetők. -Energiatakarékosság, kiváló hő- és hangszigetelés A könnyűszerkezetes ház hőszigetelő képessége az építés során alkalmazott technológia és anyagok tulajdonságaiból adódóan jóval jobb, mint a hagyományos szerkezetű épületeké. Az ilyen technológiával épülő házak esetében a fűtési költség mintegy 30-50%-kal is csökkenthető és a jól kialakított hőszigetelés jelentősen mérsékli a CO2 kibocsátást. Az emelkedő energiaárak miatt ez már egy megkerülhetetlen tényező az építkezés során, és ezen a téren a könnyűszerkezet verhetetlen! -A külső műanyag nyílászárók 3 rétegű üvegezéssel készülnek. Redőny igény szerint kérhető (plusz költség). -A FŰTÉSKÉSZ CSALÁDI HÁZ készültségi szintje kívülről: ház teljesen készre színezve, esőcsatornával kerül átadásra, telek tereprendezéssel. A kerítés, térköves járda, térköves kocsibeálló és a kapu opciósan kérhető, az ár nem tartalmazza. -Belső készültség: fűtéskész befejezés, nyers falak, betonozott aljzat, víz-, villany kiállások (vezeték befűzve). Kulcsrakész befejezés is kérhető, sőt konyhabútor és beépített bútorok is rendelhetők. Így a teljes építkezés a beköltözhető állapotig 5% Áfával megvalósítható. -Egyéb költségek: Áram ellátás 3X16A + 3X16A „H” tarifás villanyóra, 1.250.000.-Ft, napelem felszerelhető. Vízóra akna: 120.000.-Ft. Tervezés, statika, engedélyeztetés: 800.000.-Ft. Most 2.500.000.-Ft ÁRKEDVEZMÉNNYEL leköthető!!! Opciósan kérhető (feltüntetett ár nem tartalmazza): terasz teraszfedés, járda, kocsibeálló és további térkövezés igény szerint, bejárati kapu, parkosítás, kedvezményes áron konyha bútor, beépített bútorok készítése, stb. A telek fekvése, elhelyezkedése igazi természetközeli, mégis városhoz közeli otthont biztosít az itt lakóknak. Ez nem társasházas lakókörnyezet, kizárólag családi, iker- és sorházakkal. Könnyen elérhető Mosonmagyaróvár Városközpontjában található üzletek, szolgáltatások, stb. Aki olyan családi házban szeretne élni aminek a környezetében biztosan nem épülnek a jövőben társasházak, ipari és kereskedelmi létesítmények az itt fog lakni. A vételár tartalmazza a telek árát, a fűtéskész befejezést is. Új építésű ingatlanként megvásárolható, egyéb kedvezményes hitelezési konstrukciók is igénybe vehetők. A megadott elérhetőségen várom jelentkezését! Ingyenes, bankfüggetlen hitelügyintézést biztosítunk.
Lépjen velünk kapcsolatba!
Bubla Zoltán
CENTRÁL-INGATLAN MOSONMAGYARÓVÁR
A partner további hirdetései
Kapcsolatfelvételhez kattintson
A tétel adatlapján feltüntetett leírások a rendelkezésre álló információink alapján készültek. Az eszközök működőképességét, rejtett hibáit nem vizsgáltuk, azokról nincs tudomásunk. Kérjük, hogy licitálás előtt személyesen is tekintsék meg a megvásárolni kívánt tételeket, mert utólag nem tudunk reklamációt elfogadni. A szállítási és bontási költségek a vásárlót terhelik. A szállítást akkor lehet megkezdeni, ha az eladó az erre vonatkozó engedélyt megadta. A leütési ár nem tartalmazza az ÁFÁ-t és a vásárlói felárat.